风自然是作用在室外结构上的作用变量。 为了在按照组合规范 DIN EN 1990 定义的设计工况下将该荷载与其他作用(有效荷载、雪荷载等)相结合,风作用被分类为可变的自由作用。 在施工期间必须考虑由于其他作用(雪、交通或冰)以及由于结构调整而导致的空气动力系数变化。 但是,在有风荷载的情况下,假设门窗是关闭的。 不可避免地打开的门窗必须作为偶然设计情况考虑。
动风荷载必须简单地表示为最大湍流作用下的等效风压或等效风力。 对于封闭结构,风作用在外表面,对于可渗透或开放结构,风作用在内表面。 该作用必须垂直于所考虑的面。 如果在风作用下的表面积很大,则必须额外考虑一个与表面积平行的摩擦分量。
风荷载规范 DIN EN 1991-1-4 和德国国家附录将风荷载作为特征值进行了规定。 该值是由年超过概率值为 2%、平均重现期为 50 年的基本风速确定的。
对于具有足够刚性且不易受振动影响的建筑物,所产生的风荷载可以描述为取决于峰值速度的静力等效力。 相比之下,对于易受振动影响的建筑物,峰值速度还需要使用结构系数进行修正,以确定等效静荷载[1] , [2] 。
阵风共振引起的风荷载作用下变形增加不超过10%,则认为结构不易受到振动。 本准则适用于高度不超过 25 m 且不易受振动影响的典型建筑物。 在所有其他情况下,可以使用以下分类标准[3] :
值:
xS = 是由施加在风向的自重引起的水头位移,m
h = 建筑高度,m; href = 25 m
b = 建筑物垂直于风向的宽度,m
δ = 根据 DIN EN 1991-1-4,附录 F 阻尼的对数衰减
| 结构类型 | 建筑阻尼 δmin |
|---|---|
| 钢筋混凝土结构 | 0.1 |
| 钢结构 | 0.05 |
| 混合结构(钢和混凝土) | 0,08 |
高度相关的峰速压力
建筑物上不易受振动影响的风荷载取决于风速峰值 qp 。 该值是由阵风的风速计算得出,阵风长度为 2 到 4 秒,并且考虑了周围的地形条件。 为了确定一个位置的荷载,在德国国家附录中包含了一张风区图,其中包含基本风速 vb,0的相应基本值,基本风压 qb,0的基本值,以及以下参数:各种地形类型(类别 I - IV) [1] , [2] , [3].
如果风区增加,则基本风速的基本值也会增加。
地形类别随着地形的粗糙度而增加。
| 地形 | 描述 |
|---|---|
| 地形类别 I | 公海;在风向至少有 5 公里开阔区域的湖泊;平坦、平坦、没有障碍物的土地 |
| 地形类别 II | 有树篱、单个农场、房屋或树木的场地(例如农业区) |
| 地形类别 III | 郊区、工业或商业区;森林 |
| 地形类别 IV | 至少 15% 的面积被平均高度超过 15 m 的建筑物覆盖的城市地区 |
| 混合剖面海岸 | 地形类别 I 和 II 之间的过渡区域 |
| 混合型材内陆 | 地形类别 II 和 III 之间的过渡区域 |
风压峰值 vb,0可以通过定义基本风速 qp的基本值和地形类型来确定。
| 峰值风速压力 qp (kN/m² ) [3] | 方法 1 表 NA-B.1 | 方法 2 N.B.3.3 | 方法 3 N.B.3.2 | |||||||
|---|---|---|---|---|---|---|---|---|---|---|
| 海平面的影响 NN模 | 海拔高度小于 800 m | 1.0 | ||||||||
| 海拔 800 m 至 1,100 m | 0.2 + Hs/1,000 | |||||||||
| 海拔超过 1,100 m | 需要特别考虑的因素 | |||||||||
| 风荷载分区 | 1 | 2 | 3 | 4 | 1 | 2 | 3 | 4 | ||
| 基本风速的基本值 vb,0 in m/s | 22.5 | 25.0 | 27.5 | 30.0 | - | - | - | - | ||
| 方向系数 cdir | 1.0 | - | - | - | - | |||||
| 季节系数 cseason | 1.0 | - | - | - | - | |||||
| 基本风速压力 qb (kN/m²) | 0,32 | 0,39 | 0.47 | 0,56 | - | - | - | - | ||
| 地形类别 | 结构高度 | qp (kN/m²) | ||||||||
| qp (z) in kN/m² | ||||||||||
| 地形类别 I | 最大 2 m | 1.90 ⋅ qb ⋅ NNmod - | - | - | - | - | ||||
| 2 m 至 300 m | 2.60 ⋅ qb ⋅ (z/10)0.19 ⋅ NNmod | |||||||||
| 地形类别 II | 最大 4 m | 1.70 ⋅ qb ⋅ NNmod - | - | - | - | - | ||||
| 4 m 至 300 m | 2.10 ⋅ qb ⋅ (z/10)0.24 ⋅ NNmod | |||||||||
| 地形类别 III | 最大 8 m | 1.50 ⋅ qb ⋅ NNmod - | - | - | - | - | ||||
| 8 m 至 300 m | 1.60 ⋅ qb ⋅ (z/10)0.31 ⋅ NNmod | |||||||||
| 地形类别 IV | 最长 16 m | 1.30 ⋅ qb ⋅ NNmod - | - | - | - | - | ||||
| 16 m 至 300 m | 1.10 ⋅ qb ⋅ (z/10)0.40 ⋅ NNmod | |||||||||
| 北海群岛 I | 最大 2 m | 1.10 ⋅ NNmod | - | - | - | - | ||||
| 2 m 至 300 m | 1.50 ⋅ (z/10)0.19 ⋅ NNmod | |||||||||
| 沿海地区和波罗的海岛屿 I - II | 最大 4 m | 1.80 ⋅ qb ⋅ NNmod | - | - | - | - | ||||
| 4 m 至 50 m | 2.30 ⋅ qb ⋅ (z/10)0.27 ⋅ NNmod | |||||||||
| 50 m 至 300 m | 2.60 ⋅ qb ⋅ (z/10)0.19 ⋅ NNmod | |||||||||
| 内陆地区 II - III | 最大 7 m | 1.50 ⋅ qb ⋅ NNmod | - | - | - | - | ||||
| 7 m 至 50 m | 1.70 ⋅ qb ⋅ (z/10)0.37 ⋅ NNmod | |||||||||
| 50 m 至 300 m | 2.10 ⋅ qb ⋅ (z/10)0.24 ⋅ NNmod | |||||||||
| 内陆 | 最大 10 m | - | - | 0.50 ⋅ NNmod | 0.65 ⋅ NNmod | 0.80 ⋅ NNmod | 0.95 ⋅ NNmod | |||
| 10 m 至 18 m | 0.65 ⋅ NNmod | 0.80 ⋅ NNmod | 0.95 ⋅ NNmod | 1.15 ⋅ NNmod | ||||||
| 18 m 到 25 m | 0.75 ⋅ NNmod | 0.90 ⋅ NNmod | 1.10 ⋅ NNmod | 1.30 ⋅ NNmod | ||||||
| 波罗的海 | 最大 10 m | - | - | - | 0.85 ⋅ NNmod | 1.05 ⋅ NNmod | - | |||
| 10 m 至 18 m | - | 1.00 ⋅ NNmod | 1.20 ⋅ NNmod | - | ||||||
| 18 m 到 25 m | - | 1.10 ⋅ NNmod | 1.30 ⋅ NNmod | - | ||||||
| 北部和波罗的海沿岸以及波罗的海群岛 | 最大 10 m | - | - | - | - | - | 1.25 ⋅ NNmod | |||
| 10 m 至 18 m | - | - | - | 1.40 ⋅ NNmod | ||||||
| 18 m 到 25 m | - | - | - | 1.55 ⋅ NNmod | ||||||
| 北海群岛 | 最大 10 m | - | - | - | - | - | 1.40 ⋅ NNmod | |||
| 10 m 至 18 m | - | - | - | 按照方法2 | ||||||
| 18 m 到 25 m | - | - | - | 按照方法2 | ||||||
使用 Dlubal Online Service 计算当地的基本风速
Dlubal 在线服务雪荷载分区、风荷载分区和地震分区将标准规范与数字技术相结合。 根据所选的荷载类型(雪荷载、风荷载、地震)和国家/地区的标准,通过数字的 Google Maps 地图,在线服务确定各荷载类型的区域地图。 在搜索功能中输入位置、地理坐标或当地条件,即可获得相关数据。 然后,该工具通过准确的海拔高度和输入的区域数据确定该位置的典型荷载或加速度。 如果新的施工地点无法通过简单含糊的地址定义,则可以放大地图并将焦点移动到正确的位置。 当标记偏移到新的高度时,就会重新计算,并输出当前的荷载。
在线服务可以在 Dlubal 网页中的“解决方法 → 在线服务”中找到。
参数默认值...
1. 荷载类型 = 风
2. 标准 = EN 1991-1-4
3. 附件 = 德国 | DIN EN 1991-1-4
4. 地址 = Zellweg 2, Tiefenbach
…可以得出该选定地址的:
5. 风区
6 如果有必要,请提供附加信息
第 7 个自由度 基本风速 vb,0
8. 基本风压 qb
如果选择一个高于 1100 m 的位置,在线服务显示在点 6 "在 1100 m 以上没有定义风荷载 | NCI A.2 (3)". 没有荷载可以按现有规范确定,需要对此位置进行特殊考虑。
面的风压
作用在面上的风压是主导风速峰值压力乘以空气动力系数[1] , [2]的乘积。
对于外表面:
we =qp (ze ) ⋅ cpe
值:
qp (ze ) = 峰值速度压力
ze = 外部压力的参考高度
cpe = 外部压力的空气动力系数
对于内表面:
wi =qp (zi ) ⋅ cpi
值:
qp (zi ) = 峰值速度压力
zi = 内部压力的参考高度
cpi = 内部压力的空气动力系数
产生的外部和内部压力荷载是面上的净压力荷载。 作用在面上的压力为正,远离该面的压力(吸力)为负。
净压力:
w净= we + wi
所选空气动力系数
压力荷载和吸力荷载作用于风流中的结构表面。 作用在外表面上的大小取决于它们的荷载作用面积。 荷载作用区是主动吸收二维风荷载并将其集中传递给下部结构的面。 对于此类分析,该标准包含了取决于导入荷载面[1] , [2]的空气动力外压力系数。
| 荷载应用区域 A [3] | 空气动力学 外部压力系数 cpe | 描述 |
|---|---|---|
| <1 m² | cpe,1 | 小型结构构件及其锚固设计(例如外壳或屋面构件) |
| 1 m² 到 10 m² | cpe,1 - (cpe,1 - cpe,10 ) ⋅ log10 (A) | |
| > 10 m² | cpe,10 | 整体结构设计 |
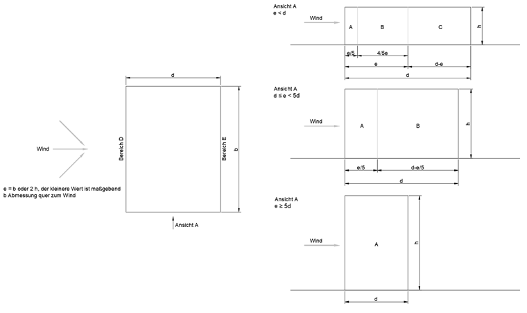
矩形楼层平面建筑物的垂直墙
风速随着距地面高度的增加而自然非线性增加。 根据建筑物高度 h 与建筑物宽度 b 的比值,可以将得出的峰值速度压力分布以简化的比例公式计算为迎风面的高度(迎风面积 D) [1] , [2] 。
其余与风平行的背风建筑物面(区域 A、B、C 和 E)的墙体吸力取决于建筑物的空气动力学特性。 最终的外表面空气动力系数可以根据建筑高度 h 与建筑高度 d 的比值来计算和应用。
| 面积 | A | B | C | D | E | |||||
|---|---|---|---|---|---|---|---|---|---|---|
| h/d | cpe,10 | cpe,1 | cpe,10 | cpe,1 | cpe,10 | cpe,1 | cpe,10 | cpe,1 | cpe,10 | cpe,1 |
| ≥5 | -1.4 | -1.7 | -0.8 | -1.1 | -0.5 | -0.7 | +0.8 | +1.0 | -0.5 | -0.7 |
| 1 | -1.2 | -1.4 | -0.8 | -1.1 | -0.5 | +0.8 | +1.0 | -0.5 | ||
| ≤0.25 | -1.2 | -1.4 | -0.8 | -1.1 | -0.5 | +0.8 | +1.0 | -0.3 | -0.5 | |
| 对于位于空旷地区的独立建筑,吸力区域可能会产生较大的吸力。 允许对中间值进行线性插值。 对于 h/d> 5 的建筑物,总风荷载必须按照 DIN EN 1991-1-4 以及德国国家附录 7.6 至 7.8 和 7.9.2 中的力值确定。 | ||||||||||
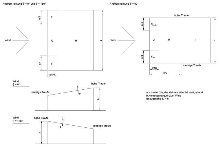
单坡屋面
与建筑物的尺寸相似,屋顶的形状也会对外部屋顶表面产生空气动力学影响。 坡度大于 5°、有明显高檐和低檐的屋面称为单坡屋面。 由于空气动力学的原因,风荷载作用在荷载作用面上,具体取决于屋面倾角[1] , [2] 。
| 面积 | B | G | H | i | ||||||
|---|---|---|---|---|---|---|---|---|---|---|
| 流向 θ = 0°2) | ||||||||||
| 倾斜角 α1) | cpe,10 | cpe,1 | cpe,10 | cpe,1 | cpe,10 | cpe,1 | cpe,10 | cpe,1 | ||
| 5° | -1.7 | -2.5 | -1.2 | -2.0 | -0.6 | -1.2 | - | - | ||
| +0.0 | +0.0 | +0.0 | ||||||||
| 15° | -0.9 | -2.0 | -0.8 | -1.5 | -0.3 | - | - | |||
| +0.2 | +0.2 | +0.2 | ||||||||
| 30° | -0.5 | -1.5 | -0.5 | -1.5 | -0.2 | - | - | |||
| +0.7 | +0.7 | +0.4 | ||||||||
| 45° | -0.0 | -0.0 | -0.0 | - | - | |||||
| +0.7 | +0.7 | +0.6 | ||||||||
| 60° | +0.7 | +0.7 | +0.7 | - | - | |||||
| 75° | +0.8 | +0.8 | +0.8 | - | - | |||||
| 流向 θ = 180° | ||||||||||
| 5° | -2.3 | -2.5 | -1.3 | -2.0 | -0.8 | -1.2 | - | - | ||
| 15° | -2.5 | -2.8 | -1.3 | -2.0 | -0.9 | -1.2 | - | - | ||
| 30° | -1.1 | -2.3 | -0.8 | -1.5 | -0.8 | - | - | |||
| 45° | -0.6 | -1.3 | -0.5 | -0.7 | - | - | ||||
| 60° | -0.5 | -1.0 | -0.5 | -0.5 | - | - | ||||
| 75° | -0.5 | -1.0 | -0.5 | -0.5 | - | - | ||||
| 流向 θ = 90° | ||||||||||
| [F12]高 | 流量 | |||||||||
| cpe,10 | cpe,1 | cpe,10 | cpe,1 | |||||||
| 5° | -2.1 | -2.6 | -2.1 | -2.4 | -1.8 | -2.0 | -0.6 | -1.2 | -0.5 | |
| 15° | -2.4 | -2.9 | -1.6 | -2.4 | -1.9 | -2.5 | -0.8 | -1.2 | -0.7 | -1.2 |
| 30° | -2.1 | -2.9 | -1.3 | -2.0 | -1.5 | -2.0 | -1.0 | -1.3 | -0.8 | -1.2 |
| 45° | -1.5 | -2.4 | -1.3 | -2.0 | -1.4 | -2.0 | -1.0 | -1.3 | -0.9 | -1.2 |
| 60° | -1.2 | -2.0 | -1.2 | -2.0 | -1.2 | -2.0 | -1.0 | -1.3 | -0.7 | -1.2 |
| 75° | -1.2 | -2.0 | -1.2 | -2.0 | -1.2 | -2.0 | -1.0 | -1.3 | -0.5 | |
| 1)在符号不变的情况下,允许对中间值进行线性插值。 对于插值,给出的值为 0.0。 2)当流向 θ = 0° 和倾角 α = +5° 到 +45° 时,压力在正值和负值之间变化非常快。 因此,对该区域给出正和负的外部压力系数。 对于此类屋面,必须分别考虑这两种情况(压力和吸力),首先只考虑正值(压力),然后只考虑负值(吸力)。 | ||||||||||
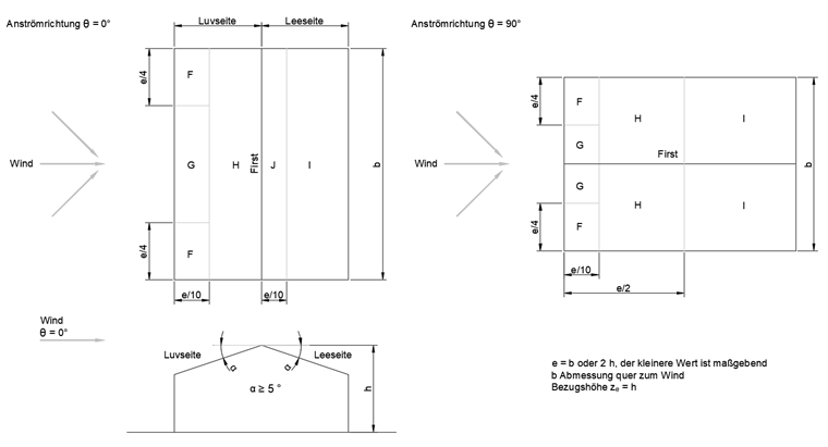
双坡屋面
人字形屋面是由两个相对倾斜的屋面组成,在屋脊的上边缘相交。 该几何形状对荷载作用区域[1] , [2]有其自身的空气动力学影响。
| 面积 | B | G | H | i | I<sub>t</sub> | ||||||
|---|---|---|---|---|---|---|---|---|---|---|---|
| 流向 θ = 0°2) | |||||||||||
| 倾斜角 α1) | cpe,10 | cpe,1 | cpe,10 | cpe,1 | cpe,10 | cpe,1 | cpe,10 | cpe,1 | cpe,10 | cpe,1 | |
| 5° | -1.7 | -2.5 | -1.2 | -2.0 | -0.6 | -1.2 | -0.6 | +0.2 | |||
| +0.0 | +0.0 | +0.0 | -0.6 | ||||||||
| 15° | -0.9 | -2.0 | -0.8 | -1.5 | -0.3 | -0.4 | -1.0 | -1.5 | |||
| +0.2 | +0.2 | +0.2 | +0.0 | +0.0 | +0.0 | ||||||
| 30° | -0.5 | -1.5 | -0.5 | -1.5 | -0.2 | -0.4 | -0.5 | ||||
| +0.7 | +0.7 | +0.4 | +0.0 | +0.0 | |||||||
| 45° | -0.0 | -0.0 | -0.0 | -0.2 | -0.3 | ||||||
| +0.7 | +0.7 | +0.6 | +0.0 | +0.0 | |||||||
| 60° | +0.7 | +0.7 | +0.7 | -0.2 | -0.3 | ||||||
| 75° | +0.8 | +0.8 | +0.8 | -0.2 | -0.3 | ||||||
| 流向 θ = 90° | |||||||||||
| 5° | -1.6 | -2.2 | -1.3 | -2.0 | -0.7 | -1.2 | -0.6 | - | - | ||
| 15° | -1.3 | -2.0 | -1.3 | -2.0 | -0.6 | -1.2 | -0.5 | - | - | ||
| 30° | -1.1 | -1.5 | -1.4 | -2.0 | -0.8 | -1.2 | -0.5 | - | - | ||
| 45° | -1.1 | -1.5 | -1.4 | -2.0 | -0.9 | -1.2 | -0.5 | - | - | ||
| 60° | -1.1 | -1.5 | -1.2 | -2.0 | -0.8 | -1.0 | -0.5 | - | - | ||
| 75° | -1.1 | -1.5 | -1.2 | -2.0 | -0.8 | -1.0 | -0.5 | - | - | ||
| 1)当流向 θ = 0° 和倾角 α = -5° 到 +45° 时,压力在正值和负值之间变化非常快。 因此,表示正值和负值。 对于此类屋面,必须考虑四种情况,即面积 F、G 和 H 的最小值或最大值与面积 I 和 J 的最小值或最大值相结合。 在屋顶面上不能混合使用正值和负值。 2)对于在指示值之间的屋面坡度,在压力系数的符号不变的情况下,允许进行线性插值。 对于 α = +5° 和 -5° 之间的倾角,必须按照 DIN EN 1991-1-4 以及章节 7.2.3 使用平屋面的值。 对于插值,给出的值为零。 | |||||||||||