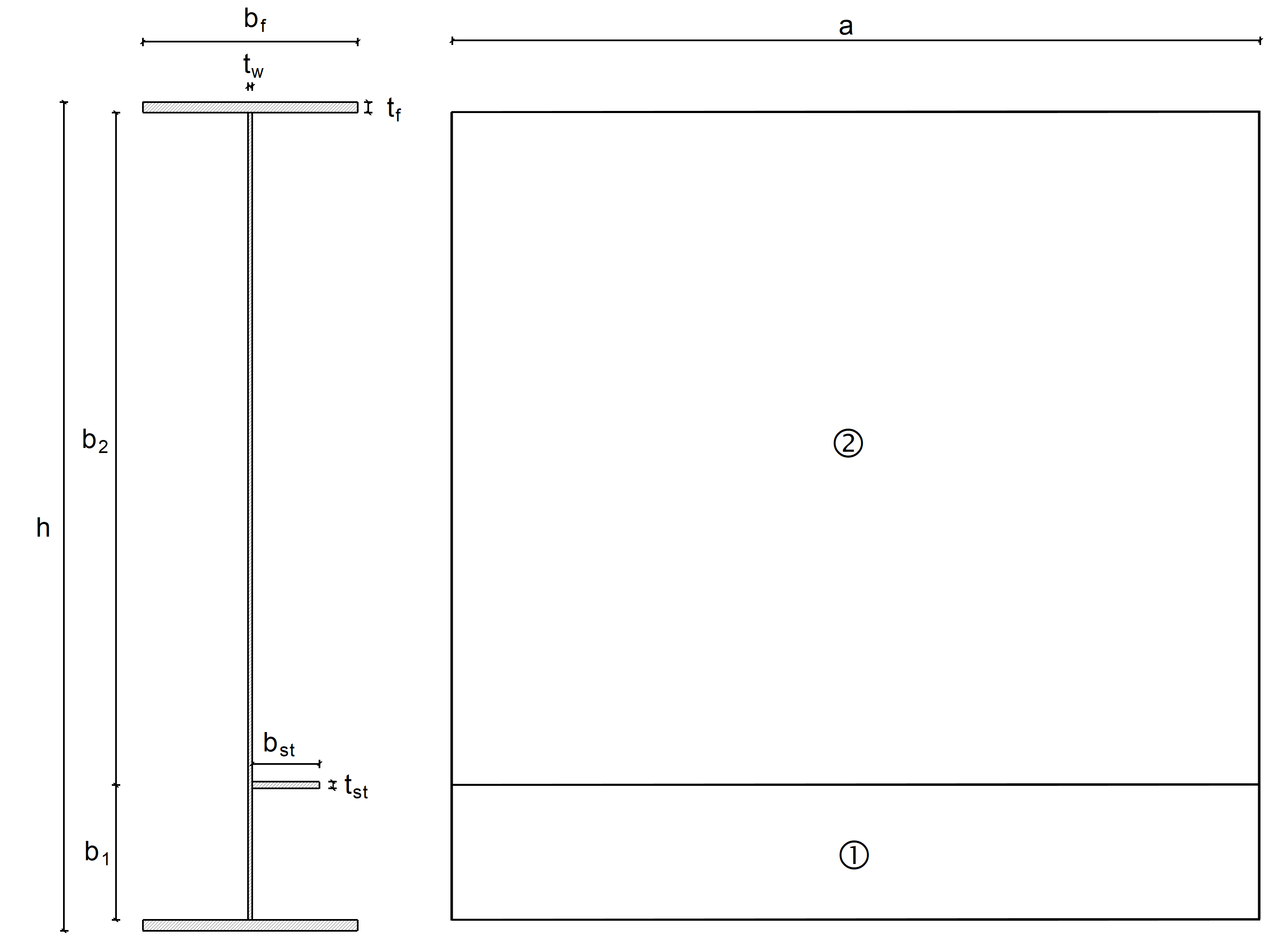
截面
应力分布
等效压杆总面积
总面积和有效面积由于局部屈曲
等效受压杆件和加劲肋: 距离e1,e2
有效截面由于局部屈曲和整体屈曲
计算参数
截面部分分类
加劲肋
屈曲区域
Ergebnisse
截面
应力分布
等效压杆总面积
总面积和有效面积由于局部屈曲
等效受压杆件和加劲肋: 距离e1,e2
有效截面由于局部屈曲和整体屈曲
计算参数
截面部分分类
加劲肋
屈曲区域
Ergebnisse
2024-05-30
009113
  • SHAPE-THIN 8
  • 钢结构
  • 应力分析与计算
    • 稳定性分析
    • Eurocode 3

截面

用于
  • 纵向加固钢板按照规范 EN 1993-1-5 章节 4.5
分享
2024-05-30
009114
  • SHAPE-THIN 8
  • 钢结构
  • 应力分析与计算
    • 稳定性分析
    • Eurocode 3
应力分布
用于
  • 纵向加固钢板按照规范 EN 1993-1-5 章节 4.5
分享
2024-05-30
009115
  • SHAPE-THIN 8
  • 钢结构
  • 应力分析与计算
    • 稳定性分析
    • Eurocode 3
等效压杆总面积
用于
  • 纵向加固钢板按照规范 EN 1993-1-5 章节 4.5
分享
2024-05-30
009116
  • SHAPE-THIN 8
  • 钢结构
  • 应力分析与计算
    • 稳定性分析
    • Eurocode 3
总面积和有效面积由于局部屈曲
用于
  • 纵向加固钢板按照规范 EN 1993-1-5 章节 4.5
分享
2024-05-30
009117
  • SHAPE-THIN 8
  • 钢结构
  • 应力分析与计算
    • 稳定性分析
    • Eurocode 3
等效受压杆件和加劲肋: 距离e1,e2
用于
  • 纵向加固钢板按照规范 EN 1993-1-5 章节 4.5
分享
2024-05-30
009118
  • SHAPE-THIN 8
  • 钢结构
  • 应力分析与计算
    • 稳定性分析
    • Eurocode 3
有效截面由于局部屈曲和整体屈曲
用于
  • 纵向加固钢板按照规范 EN 1993-1-5 章节 4.5
分享
2024-05-30
009119
  • SHAPE-THIN 8
  • 钢结构
  • 应力分析与计算
    • 稳定性分析
    • Eurocode 3
计算参数
用于
  • 纵向加固钢板按照规范 EN 1993-1-5 章节 4.5
分享
2024-05-30
009120
  • SHAPE-THIN 8
  • 钢结构
  • 应力分析与计算
    • 稳定性分析
    • Eurocode 3
截面部分分类
用于
  • 纵向加固钢板按照规范 EN 1993-1-5 章节 4.5
分享
2024-05-30
009121
  • SHAPE-THIN 8
  • 钢结构
  • 应力分析与计算
    • 稳定性分析
    • Eurocode 3
加劲肋
用于
  • 纵向加固钢板按照规范 EN 1993-1-5 章节 4.5
分享
2024-05-30
009122
  • SHAPE-THIN 8
  • 钢结构
  • 应力分析与计算
    • 稳定性分析
    • Eurocode 3
屈曲区域
用于
  • 纵向加固钢板按照规范 EN 1993-1-5 章节 4.5
分享
2024-05-30
009123
  • SHAPE-THIN 8
  • 钢结构
  • 应力分析与计算
    • 稳定性分析
    • Eurocode 3
Ergebnisse
用于
  • 纵向加固钢板按照规范 EN 1993-1-5 章节 4.5
分享