纵向加固钢板按照规范 EN 1993-1-5 章节 4.5

技术文章

在软件 SHAPE-THIN 中计算纵向加固的钢板是按照规范 EN 1993-1-5 章节 4.5 进行。 对于纵向加固的钢板,必须考虑由于在板中和加固件中的单个区域的局部屈曲得出的作用面积,还考虑由加固的整个区域的总区域屈曲得出的作用面积。

首先,单个区域的作用面积是按照规范 EN 1993-1-5 [1] 中章节 4.4 中的折减系数确定的。 第二步,考虑与屈曲杆件类似的屈曲行为来确定整个区域的屈曲安全性。 使用整个区域屈曲的折减系数使得单个区域的有效宽度再次折减。 这样得出的有效截面可以作为截面类型 3 处理。

举例

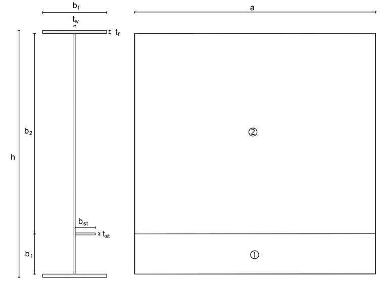
下面的例子是从德国钢结构年鉴 2015 [2] 中摘取。 截面是工字型,腹板在横向和纵向都被加固。 横向加固之间的距离 3000 mm,纵向加固被焊接距离下翼缘 500 mm 处。 焊缝忽略不计。 作用的轴向压力为 NEd = 4.000 kN。

图片 01 - 截面

材料:
S355 J0
fy = 35.5 kN/cm² (当 t ≤ 3 mm 和 t ≤ 16 mm)
fy = 34.5 kN/cm² (当 t > 16 mm 和 t ≤ 40 mm)
E = 21 000 kN/cm²
G = 8076.92 kN/cm²
γM0 = 1.0

a = 3 000 mm
b1 = 500 mm
b2 = 2 500 mm
bf = 800 mm
bst = 250 mm
tw = 15 mm
tf = 40 mm
tst = 25 mm
h = 3 080 mm

总截面和应力分布

应力计算如下:

${\mathrm\sigma}_1\;=\;{\mathrm\sigma}_\mathrm{sl}\;=\;{\mathrm\sigma}_2\;=\;\frac{{\mathrm N}_\mathrm{Ed}}{\mathrm A}\;=\;\frac{4,000}{1,152.5}\;=\;3.47\;\mathrm{kN}/\mathrm{cm}²$

总面积和应力分布如图 02 所示。

图片 02 - 应力分布

截面分类

检查截面分类,确定是否要进行单个区域的屈曲验算。 如果单个区域最少在截面分类 3 中,局部屈曲验算不起决定性作用。

翼缘

$\begin{array}{l}{\mathrm c}_\mathrm f\;=\;\frac{{\mathrm b}_\mathrm f\;-\;{\mathrm t}_\mathrm w}2\;=\;\frac{800\;-\;15}2\;=\;392.5\;\mathrm{mm}\\\frac{\displaystyle{\mathrm c}_\mathrm f}{\displaystyle{\mathrm t}_\mathrm f}\;=\;\frac{\displaystyle392.5}{\displaystyle40}\;=\;9.8\end{array}$

最大的 c/t 比值 λi 按照规范 EN 1993-1-1 [3] 中表格 5.2 确定。

$\begin{array}{l}\mathrm\varepsilon\;=\;\sqrt{235\;/\;{\mathrm f}_\mathrm y}\;=\;\sqrt{235\;/\;345}\;=\;0.825\\{\mathrm\lambda}_1\;=\;9\;\cdot\;\mathrm\varepsilon\;=\;9\;\cdot\;0.825\;=\;7.4\;<\;\frac{{\mathrm c}_\mathrm f}{{\mathrm t}_\mathrm f}\;=\;9.8\\{\mathrm\lambda}_2\;=\;10\;\cdot\;\mathrm\varepsilon\;=\;10\;\cdot\;0.825\;=\;8.2\;<\;\frac{{\mathrm c}_\mathrm f}{{\mathrm t}_\mathrm f}\;=\;9.8\\{\mathrm\lambda}_3\;=\;14\;\cdot\;\mathrm\varepsilon\;=\;14\;\cdot\;0.825\;=\;11.6\;>\;\frac{{\mathrm c}_\mathrm f}{{\mathrm t}_\mathrm f}\;=\;9.8\end{array}$

翼缘归入截面分类 3。 因此局部屈曲是不起决定性作用的,就不需要折减翼缘的单个区域。

腹板

$\begin{array}{l}{\mathrm c}_1\;=\;{\mathrm b}_1\;-\;\frac{{\mathrm t}_\mathrm{st}}2\;=\;500\;-\;\frac{25}2\;=\;487.5\;\mathrm{mm}\\\frac{\displaystyle{\mathrm c}_1}{\displaystyle{\mathrm t}_\mathrm w}\;=\;\frac{\displaystyle487.5}{\displaystyle15}\;=\;32.5\end{array}$

最大 c/t 比值 λi 是按照 [3] 中表格 5.2 确定。

$\begin{array}{l}\mathrm\varepsilon\;=\;\sqrt{235\;/\;{\mathrm f}_\mathrm y}\;=\;\sqrt{235\;/\;355}\;=\;0.814\\{\mathrm\lambda}_1\;=\;33\;\cdot\;\mathrm\varepsilon\;=\;33\;\cdot\;0.814\;=\;26.8\;<\;\frac{{\mathrm c}_1}{{\mathrm t}_\mathrm w}\;=\;32.5\\{\mathrm\lambda}_2\;=\;38\;\cdot\;\mathrm\varepsilon\;=\;38\;\cdot\;0.814\;=\;30.9\;<\;\frac{{\mathrm c}_1}{{\mathrm t}_\mathrm w}\;=\;32.5\\{\mathrm\lambda}_3\;=\;42\;\cdot\;\mathrm\varepsilon\;=\;42\;\cdot\;0.814\;=\;34.2\;>\;\frac{{\mathrm c}_1}{{\mathrm t}_\mathrm w}\;=\;32.5\end{array}$

单个区域 1 归入截面分类 3。 因此局部屈曲是不起决定性作用的,就不需要折减翼缘的单个区域。

$\begin{array}{l}{\mathrm c}_2\;=\;{\mathrm b}_2\;-\;\frac{{\mathrm t}_\mathrm{st}}2\;=\;2,500\;-\;\frac{25}2\;=\;2,487.5\;\mathrm{mm}\\\frac{\displaystyle{\mathrm c}_2}{\displaystyle{\mathrm t}_\mathrm w}\;=\;\frac{\displaystyle2,487.5}{\displaystyle15}\;=\;165.8\end{array}$

最大 c/t 比值 λi 是按照 [3] 中表格 5.2 确定。

$\begin{array}{l}\mathrm\varepsilon\;=\;\sqrt{235\;/\;{\mathrm f}_\mathrm y}\;=\;\sqrt{235\;/\;355}\;=\;0.814\\{\mathrm\lambda}_1\;=\;33\;\cdot\;\mathrm\varepsilon\;=\;33\;\cdot\;0.814\;=\;26.8\;<\;\frac{{\mathrm c}_2}{{\mathrm t}_\mathrm w}\;=\;165.8\\{\mathrm\lambda}_2\;=\;38\;\cdot\;\mathrm\varepsilon\;=\;38\;\cdot\;0.814\;=\;30.9\;<\;\frac{{\mathrm c}_2}{{\mathrm t}_\mathrm w}\;=\;165.8\\{\mathrm\lambda}_3\;=\;42\;\cdot\;\mathrm\varepsilon\;=\;42\;\cdot\;0.814\;=\;34.2\;<\;\frac{{\mathrm c}_2}{{\mathrm t}_\mathrm w}\;=\;165.8\end{array}$

单个区域 2 归入截面分类 4。 因此局部屈曲是起决定性作用的,还需要折减单个区域。

加固

$\begin{array}{l}{\mathrm b}_\mathrm{st}\;=\;250\;\mathrm{mm}\\\frac{\displaystyle{\mathrm b}_\mathrm{st}}{\displaystyle{\mathrm t}_\mathrm{st}}\;=\;\frac{\displaystyle250}{\displaystyle25}\;=\;10\end{array}$

最大 c/t 比值 λi 按照 [3] 中表格 5.2 确定。

$\begin{array}{l}\mathrm\varepsilon\;=\;\sqrt{235\;/\;{\mathrm f}_\mathrm y}\;=\;\sqrt{235\;/\;345}\;=\;0.825\\{\mathrm\lambda}_1\;=\;9\;\cdot\;\mathrm\varepsilon\;=\;9\;\cdot\;0.825\;=\;7.4\;<\;\frac{\displaystyle{\mathrm b}_\mathrm{st}}{\displaystyle{\mathrm t}_\mathrm{st}}\;=\;10\\{\mathrm\lambda}_2\;=\;10\;\cdot\;\mathrm\varepsilon\;=\;10\;\cdot\;0.825\;=\;8.2\;<\;\frac{\displaystyle{\mathrm b}_\mathrm{st}}{\displaystyle{\mathrm t}_\mathrm{st}}\;=\;10\\{\mathrm\lambda}_3\;=\;14\cdot\;\mathrm\varepsilon\;=\;14\;\cdot0.825\;=\;11.6\;>\;\frac{\displaystyle{\mathrm b}_\mathrm{st}}{\displaystyle{\mathrm t}_\mathrm{st}}\;=\;10\end{array}$

腹板归入截面分类 3。 因此局部屈曲不起决定性作用,就不需要折减翼缘的单个区域。

有效宽度

单个区域 1 归入截面分类 3,局部屈曲不起决定性作用。 因此有效的截面属性与总截面属性相符合。 按照 [1] 中表格 4.1 得出下面的有效宽度:

$\begin{array}{l}{\mathrm b}_{1,\mathrm{eff}}\;=\;{\mathrm c}_1\;=\;487.5\;\mathrm{mm}\\{\mathrm b}_{1,\mathrm{edge},\mathrm{eff}}\;=\;{\mathrm b}_{1,\mathrm{edge}}\;=\;0.5\;\cdot\;{\mathrm c}_1\;=\;0.5\;\cdot\;487.5\;=\;243.8\;\mathrm{mm}\\{\mathrm b}_{1,\inf,\mathrm{eff}}\;=\;{\mathrm b}_{1,\inf}\;=\;0.5\;\cdot\;{\mathrm c}_1\;=\;0.5\;\cdot\;487.5\;=\;243.8\;\mathrm{mm}\end{array}$

单个区域 2 归入截面分类 4,所以局部屈曲起决定性作用。 因此单个区域 2 的有效宽度按照 [1] 中章节 4.4 确定。

在单个区域 2 中的应力分布是恒定的。 因此得出应力比 ψ = 1 并且按照表格 4.1 取值屈曲系数 kσ= 4,0。 得出的长细比 ${\overline{\mathrm\lambda}}_{\mathrm p2}$ 按照 [1] 中章节4.4(2) 取值:

${\overline{\mathrm\lambda}}_{\mathrm p2}\;=\;\frac{\displaystyle\frac{{\mathrm c}_2}{{\mathrm t}_\mathrm w}}{28.4\;\cdot\;\mathrm\varepsilon\;\cdot\;\sqrt{{\mathrm k}_\mathrm\sigma}}\;=\;\frac{165.8}{28.4\;\cdot\;0.814\;\cdot\;\sqrt4}\;=\;3.588$$>\;0.5\;+\;\sqrt{0.085\;-\;0.055\;\cdot\;\mathrm\psi}$
 $>\;0.5\;+\;\sqrt{0.085\;-\;0.055\;\cdot\;1}\;=\;0.673$

局部折减系数 ρ 按照 [1] 中公式 (4.2) 计算:

${\mathrm\rho}_2\;=\;\frac{{\overline{\mathrm\lambda}}_{\mathrm p2}\;-\;0.055\;\cdot\;\left(3\;+\;\mathrm\psi\right)}{\overline{\mathrm\lambda}_{\mathrm p2}^2}\;=\;\frac{3.588\;-\;0.055\;\cdot\;\left(3\;+\;1\right)}{3.588^2}\;=\;0.262\;<\;1$

单个区域 2 的有效宽度要考虑局部屈曲并按照 [1] 中表格 4.1 计算:

$\begin{array}{l}{\mathrm b}_{2,\mathrm{eff}}\;=\;{\mathrm\rho}_2\;\cdot\;{\mathrm c}_2\;=\;0.262\;\cdot\;2,487.5\;=\;650.7\;\mathrm{mm}\\{\mathrm b}_{2,\mathrm{edge},\mathrm{eff}}\;=\;0.5\;\cdot\;{\mathrm b}_{2,\mathrm{eff}}\;=\;0.5\;\cdot\;650.7\;=\;325.4\;\mathrm{mm}\\{\mathrm b}_{2,\sup,\mathrm{eff}}\;=\;0.5\;\cdot\;{\mathrm b}_{2,\mathrm{eff}}\;=\;0.5\;\cdot\;650.7\;=\;325.4\;\mathrm{mm}\end{array}$

得出总截面的宽度:

$\begin{array}{l}{\mathrm b}_{2,\mathrm{edge}}\;=\;0.5\;\cdot\;{\mathrm c}_2\;=\;0.5\;\cdot\;2,487.5\;=\;1,243.8\;\mathrm{mm}\\{\mathrm b}_{2,\sup}\;=\;0.5\;\cdot\;{\mathrm c}_2\;=\;0.5\;\cdot\;2,487.5\;=\;1,243.8\;\mathrm{mm}\end{array}$

板的性质

加固的弹性临界屈曲应力 σcr,sl 按照 [1] 中附录 A.2.2 计算。 首先计算加固的屈曲长度 ac :

${\mathrm a}_\mathrm c\;=\;4.33\;\cdot\;\sqrt[4]{\frac{{\mathrm I}_{\mathrm{sl},1}\;\cdot\;\mathrm b_1^2\;\cdot\;\mathrm b_2^2}{\mathrm t^3\;\cdot\;\mathrm b}}\;=\;4.33\;\cdot\;\sqrt[4]{\frac{11,900\;\cdot\;50^2\;\cdot\;250^2}{1.5^3\;\cdot\;\left(50\;+\;250\right)}}\;=\;896.4\;\mathrm{cm}\;>\;\mathrm a\;=\;300\;\mathrm{cm}$

得出加固的弹性临界屈曲应力 σcr,sl 且 a < ac :

$\begin{array}{l}{\mathrm\sigma}_{\mathrm{cr},\mathrm{sl}}\;=\;\frac{\mathrm\pi^2\;\cdot\;\mathrm E\;\cdot\;{\mathrm I}_{\mathrm{sl},1}}{{\mathrm A}_{\mathrm{sl},1}\;\cdot\;\mathrm a^2}\;+\;\frac{\mathrm E\;\cdot\;\mathrm t^3\;\cdot\;\mathrm b\;\cdot\;\mathrm a^2}{4\;\cdot\;\mathrm\pi^2\;\cdot\;\left(1\;-\;\mathrm\nu^2\right)\;\cdot\;{\mathrm A}_{\mathrm{sl},1}\;\cdot\;\mathrm b_1^2\;\cdot\;\mathrm b_2^2}\;\mathrm{for}\;\mathrm a\;<\;{\mathrm a}_\mathrm c\\{\mathrm\sigma}_{\mathrm{cr},\mathrm{sl}}\;=\;\frac{\mathrm\pi^2\;\cdot\;21,000\;\cdot\;11,900}{289.4\;\cdot\;300^2}+\frac{21,000\;\cdot\;1.5^3\;\cdot\;\left(50\;+\;250\right)\;\cdot\;300^2}{4\;\cdot\;\mathrm\pi^2\;\cdot\;\left(1\;-\;0.3^2\right)\;\cdot\;289.4\;\cdot\;50^2\;\cdot\;250^2}\;=\;95.9\;\mathrm{kN}/\mathrm{cm}^2\end{array}$

这里 Isl,1 和 Asl,1 表示总截面的惯性矩以及按照 [1] 中 A.2.1(2) 板平面外屈曲的等效压杆的总截面,b1 和 b2 是加固到纵向边缘的距离 (b1 + b2 = b)。

应力分布是恒定的。 这里弹性的板屈曲应力 σcr,p 与弹性临界屈曲应力 σcr,sl 相一致。

${\mathrm\sigma}_{\mathrm{cr},\mathrm p}\;=\;{\mathrm\sigma}_{\mathrm{cr},\mathrm{sl}}\;=\;95.9\;\mathrm{kN}/\mathrm{cm}^2$

图片 03 - 等效压杆总面积

不考虑由相邻板部分支撑的边缘板和上述区域的有效截面积 Ac,eff,loc,p ,纵向加固的板区域的总截面面积 Ac 计算如下:

${\mathrm A}_\mathrm c\;=\;\left({\mathrm b}_{1,\inf}\;+\;{\mathrm b}_{2,\sup}\;+\;{\mathrm t}_\mathrm{st}\right)\;\cdot\;{\mathrm t}_\mathrm w\;+\;{\mathrm b}_\mathrm{st}\;\cdot\;{\mathrm t}_\mathrm{st}\;=\;\left(24.38\;+\;124.38\;+\;2.5\right)\;\cdot\;1.5\;+\;25\;\cdot\;2.5\;=\;289.4\;\mathrm{cm}^2$

加固归入截面分类 3,加固的有效截面积与加固的总截面积相一致。

${\mathrm A}_{\mathrm c,\mathrm{eff},\mathrm{loc},\mathrm p}\;=\;\left({\mathrm b}_{1,\inf,\mathrm{eff}}\;+\;{\mathrm b}_{2,\sup,\mathrm{eff}}\;+\;{\mathrm t}_\mathrm{st}\right)\;\cdot\;{\mathrm t}_\mathrm w\;+\;{\mathrm b}_{\mathrm{st},\mathrm{eff}}\;\cdot\;{\mathrm t}_\mathrm{st}\;=\;\left(24.38\;+\;32.54\;+\;2.5\right)\;\cdot\;1.5\;+\;25\;\cdot\;2.5\;=\;151.6\;\mathrm{cm}^2$

截面属性如图 04 所示。

图片 04 - 总面积和有效面积由于局部屈曲

折减系数 βa,c,p 按照 [1] 中章节 4.5.2 计算:

$\begin{array}{l}{\mathrm\beta}_{\mathrm a,\mathrm c,\mathrm p}\;=\;\frac{{\mathrm A}_{\mathrm c,\mathrm{eff},\mathrm{loc},\mathrm p}}{{\mathrm A}_\mathrm c}\\{\mathrm\beta}_{\mathrm a,\mathrm c,\mathrm p}\;=\;\frac{151.6}{289.4}\;=\;0.524\end{array}$

加固板的总长细比 ${\overline{\mathrm\lambda}}_\mathrm p$ 按照 [1] 中公式 (4.7) 计算:

${\overline{\mathrm\lambda}}_\mathrm p\;=\;\sqrt{\frac{{\mathrm\beta}_{\mathrm a,\mathrm c,\mathrm p}\;\cdot\;{\mathrm f}_\mathrm y}{{\mathrm\sigma}_{\mathrm{cr},\mathrm p}}}=\sqrt{\frac{0.524\;\cdot\;35.5}{95.9}}\;=\;0.440$$<\;0.5\;+\;\sqrt{0.085\;-\;0.055\;\cdot\;\mathrm\psi}$
 $<\;0.5\;+\;\sqrt{0.085\;-\;0.055\;\cdot\;1}\;=\;0.673$

长细比 ${\overline{\mathrm\lambda}}_\mathrm p$ 小于极限值 0,673 按照 [1], 4.4(2)。 因此对于板的性质方面来说不需要折减,ρp = 1,0。

类似屈曲杆件的性质

弹性临界屈曲应力 σcr,c 按照 [1] 中章节 4.5.3(3) 计算。 首先位于最大受压边缘的加固的屈曲应力 σcr,c,sl 按照 [1] 公式 (4.9) 计算:

${\mathrm\sigma}_{\mathrm{cr},\mathrm c,\mathrm{sl}}\;=\;\frac{\mathrm\pi^2\;\cdot\;\mathrm E\;\cdot\;{\mathrm I}_\mathrm{sl}}{{\mathrm A}_\mathrm{sl}\;\cdot\;\mathrm a^2}\;=\;\frac{\mathrm\pi^2\;\cdot\;21,000\;\cdot\;11,900}{289.4\;\cdot\;300^2}\;=\;94.7\;\mathrm{kN}/\mathrm{cm}^2$

应力分布是恒定的。 弹性临界屈曲应力 σcr,c 和最大受压边缘的加固的弹性屈曲应力 σcr,c,sl 相一致:

σcr,c = σcr,c,sl = 94.7 kN/cm²

折减系数 βa,c,c 按照 [1] 中章节 4.5.3(4) 计算:

等效压杆的长细比 ${\overline{\mathrm\lambda}}_\mathrm c$ 是按照 [1] 中公式 (4.11) 得出:

${\overline{\mathrm\lambda}}_\mathrm c\;=\;\sqrt{\frac{{\mathrm\beta}_{\mathrm a,\mathrm c,\mathrm c}\;\cdot\;{\mathrm f}_\mathrm y}{{\mathrm\sigma}_{\mathrm{cr},\mathrm c}}}\;=\;\sqrt{\frac{0.524\;\cdot\;35.5}{94.7}}\;=\;0.443$

按照 [1] 中章节 4.5.3(5) 计算回转半径:

$\mathrm i\;=\;\sqrt{\frac{{\mathrm I}_\mathrm{sl}}{{\mathrm A}_\mathrm{sl}}}\;=\;\sqrt{\frac{11,900}{289.4}}\;=\;6.41\;\mathrm{cm}$

距离 e 是两者中较大的距离,按照 [1] 图 A.1,即, e2 是加劲肋和作用的钢板部分共同作用的重心到工字钢腹板中心线的距离, e1 是加劲肋和作用钢板部分共同作用的重心到单个加劲肋的形心之间的距离,e 取两者中较大值。 距离都在图 05 中显示。

图片 05 - 等效压杆和加固:距离 e1, e2

e = max (e1, e2) = max (10.39 cm, 2.86 cm) = 10.39 cm

按照 [1] 中公式 (4.12) 计算缺陷系数 αe ,对于敞开的加劲肋截面 α = 0.49:

${\mathrm\alpha}_\mathrm e\;=\;\mathrm\alpha\;+\;\frac{0.09}{\mathrm i\;/\;\mathrm e}\;=\;0.49\;+\;\frac{0.09}{6.41\;/\;10.39}\;=\;0.636$

折减系数 χc 按照 [3] 中 6.3.1.2 确定:

$\begin{array}{l}\mathrm\phi\;=\;0.5\;\cdot\;\left(1.0\;+\;{\mathrm\alpha}_\mathrm e\;\cdot\;\left({\overline{\mathrm\lambda}}_\mathrm c\;-\;0.2\right)\;+\;\overline{\mathrm\lambda}_\mathrm c^2\right)\;=\;0.5\;\cdot\;\left(1.0\;+\;0.636\;\cdot\;\left(0.443\;-\;0.2\right)\;+\;0.443^2\right)\;=\;0.675\\{\mathrm\chi}_\mathrm c\;=\;\frac1{\mathrm\phi\;+\;\sqrt{\mathrm\phi^2\;-\;\overline{\mathrm\lambda}_\mathrm c^2}}\;=\;\frac1{0.675\;+\;\sqrt{0.675^2\;-\;0.443^2}}\;=\;0.844\;<\;1\end{array}$

类似杆件屈曲和板的性质之间的相互作用

总区域的承载能力通过系数 ξ 按照 [1] 中章节 4.5.4(1) 确定:

$\begin{array}{l}\mathrm\xi\;=\;\frac{{\mathrm\sigma}_{\mathrm{cr},\mathrm p}}{{\mathrm\sigma}_{\mathrm{cr},\mathrm c}}\;-\;1\;\mathrm{but}\;0\;\leq\;\mathrm\xi\;\leq\;1\\\mathrm\xi\;=\;\frac{95.9}{94.7}\;-\;1\;=\;0.013\end{array}$

最终的折减系数 ρc 根据 [1] 中公式 (4.13) 相互作用的公式确定:

${\mathrm\rho}_\mathrm c\;=\;({\mathrm\rho}_\mathrm p\;-\;{\mathrm\chi}_\mathrm c)\;\cdot\;\mathrm\xi\;\cdot\;(2\;-\;\mathrm\xi)\;+\;{\mathrm\chi}_\mathrm c\;=\;\left(1\;-\;0.844\right)\;\cdot\;0.013\;\cdot\;\left(2\;-\;0.013\right)\;+\;0.844\;=\;0.848$

有效截面属性

被加固的钢板区域的受压区有效面积 Ac,eff 按照 [1] 中公式 (4.5) 计算:

${\mathrm A}_{\mathrm c,\mathrm{eff}}\;=\;{\mathrm\rho}_\mathrm c\;\cdot\;{\mathrm A}_{\mathrm c,\mathrm{eff},\mathrm{loc},\mathrm p}\;+\;{\textstyle\sum}{\mathrm b}_{\mathrm{edge},\mathrm{eff}}\;\cdot\;\mathrm t\;=\;0.848\;\cdot\;151.6\;+\;24.38\;\cdot\;1.5\;+\;32.54\;\cdot\;1.5\;=\;214.1\;\mathrm{cm}²$

有效截面积 Aeff 是:

${\mathrm A}_\mathrm{eff}\;=\;{\mathrm A}_{\mathrm c,\mathrm{eff}}\;+\;2\;\cdot\;{\mathrm b}_\mathrm f\;\cdot\;{\mathrm t}_\mathrm f\;=\;214.1\;+\;2\;\cdot\;80\;\cdot\;4\;=\;854.1\;\mathrm{cm}²$

图片 06 - 有效截面由于局部屈曲和整体屈曲

被加固钢板区域的设计计算

总截面的重心轴和有效截面的重心轴不重合,这里必须考虑由于两个重心轴相对偏移引起的附加作用的弯矩。 计算附加弯矩:

$\begin{array}{l}{\mathrm e}_\mathrm y\;=\;0.82\;-\;0.72\;=\;0.10\;\mathrm{cm}\\{\mathrm e}_\mathrm z\;=\;164.97\;-\;157.42\;=\;7.55\;\mathrm{cm}\\{\mathrm M}_\mathrm y\;=\;\mathrm N\;\cdot\;{\mathrm e}_\mathrm z\;=\;\:4,000\;\cdot\;7.55\;=\;30,202.4\;\mathrm{kNcm}\\{\mathrm M}_\mathrm z\;=\;\mathrm N\;\cdot\;{\mathrm e}_\mathrm y\;=\;-4,000\;\cdot\;0.10\;=\;-414.3\;\mathrm{kNcm}\\{\mathrm M}_\mathrm u\;=\;30,203.7\;\mathrm{KNcm}\\{\mathrm M}_\mathrm v\;=\;-306.4\;\mathrm{KNcm}\end{array}$

得出的最大应力为:

${\mathrm\sigma}_\mathrm{eff}\;=\;\frac{\mathrm N}{{\mathrm A}_\mathrm{eff}}\;+\;\frac{{\mathrm M}_\mathrm u\;\cdot\;{\mathrm e}_\mathrm v}{{\mathrm I}_{\mathrm u,\mathrm{eff}}}\;-\;\frac{{\mathrm M}_\mathrm v\;\cdot\;{\mathrm e}_\mathrm u}{{\mathrm I}_{\mathrm v,\mathrm{eff}}}\;=\;\frac{4,000}{854.1}\;+\;\frac{30,203.7\;\cdot\;165.12}{17,466,764}\;-\;\frac{-306.4\;\cdot\;40.23}{352,626}\;=\;5.01\;\mathrm{kN}/\mathrm{cm}²$

设计计算按照 [1] 中公式:

${\mathrm\eta}_1\;=\;\frac{{\mathrm\sigma}_\mathrm{eff}}{\displaystyle\frac{{\mathrm f}_\mathrm y}{{\mathrm\gamma}_{\mathrm M0}}}\;=\;\frac{5.01}{\displaystyle\frac{34.5}{1.0}}\;=\;0.15$

扭转屈曲安全性的设计计算

按照 [1] 中章节 9.2.1(8) 满足下面条件就可以避免敞开截面的加劲肋发生扭转屈曲:

$\begin{array}{l}{\mathrm\eta}_1\;=\;\frac{5.3\;\cdot\;{\mathrm f}_\mathrm y\;\cdot\;{\mathrm I}_\mathrm p}{\mathrm E\;\cdot\;{\mathrm I}_{\mathrm{St}.\;\mathrm{Ven}}}\;\leq\;1\\{\mathrm\eta}_1\;=\;\frac{5.3\;\cdot\;34.5\;\cdot\;13,053}{21,000\;\cdot\;122}\;=\;0.93\;\leq\;1\end{array}$

加劲肋截面(无钢板)的极惯性矩 Ip 和 抗扭惯性矩(St.Venant) ISt.Ven  围绕在钢板上的连接点计算。

考虑翘曲刚度,首先要计算临界扭转屈曲应力 σcr 。 该计算按照 [4] 中公式 (2.119) 以及公式 (2.120) 如下计算:

$\begin{array}{l}{\mathrm\sigma}_{\mathrm{cr}1}\;=\;\frac1{{\mathrm I}_\mathrm p}\;\cdot\;\left(\frac{\mathrm\pi^2\;\cdot\;\mathrm E\;\cdot\;{\mathrm I}_\mathrm\omega}{\mathrm l^2}\;+\;\mathrm G\;\cdot\;{\mathrm I}_{\mathrm{St}.\;\;\mathrm{Ven}}\right)\;\mathrm{for}\;\mathrm l\;<\;\mathrm L\;_\mathrm{cr}\\{\mathrm\sigma}_{\mathrm{cr}2}\;=\;\frac1{{\mathrm I}_\mathrm p}\;\cdot\;\left(2\;\cdot\;\sqrt{{\mathrm C}_\mathrm\theta\;\cdot\;\mathrm E\;\cdot\;{\mathrm I}_\mathrm\omega}\;+\;\mathrm G\;\cdot\;{\mathrm I}_{\mathrm{St}.\;\;\mathrm{Ven}}\right)\;\mathrm{for}\;\mathrm l\;>\;{\mathrm L}_\mathrm{cr}\end{array}$

加劲肋的扇性模量 Iω = 0 cm6。 临界扭转屈曲应力 σcr 简化为:

$\begin{array}{l}{\mathrm\sigma}_{\mathrm{cr}1}\;=\;{\mathrm\sigma}_{\mathrm{cr}2}\;=\;\frac1{{\mathrm I}_\mathrm p}\;\cdot\;\mathrm G\;\cdot\;{\mathrm I}_{\mathrm{St}.\;\;\mathrm{Ven}}\\{\mathrm\sigma}_{\mathrm{cr}1}\;=\;{\mathrm\sigma}_{\mathrm{cr}2}\;=\;\frac1{13,053}\;\cdot\;8,077\;\cdot\;122\;=\;75.5\;\mathrm{kN}/\mathrm{cm}²\end{array}$

加劲肋截面(无钢板)的极惯性矩 Ip 和 抗扭惯性矩(St.Venant) ISt.Ven  围绕在钢板上的连接点计算。

按照 [1] 中章节 9.2.1(9) ,考虑翘曲刚度,满足 9.2.1(8) 或者下面条件:

$\begin{array}{l}{\mathrm\eta}_2\;=\;\frac{\mathrm\theta\;\cdot\;{\mathrm f}_\mathrm y}{{\mathrm\sigma}_{\mathrm{cr}1}}\;\leq\;1\\{\mathrm\eta}_3\;=\;\frac{\mathrm\theta\;\cdot\;{\mathrm f}_\mathrm y}{{\mathrm\sigma}_{\mathrm{cr}2}}\;\leq\;1\end{array}$

按照 [5] 确保弹性行为的系数对应于截面分类 3 中的 θ = 2,加劲肋具有少量的翘曲刚度(例如扁钢或者球扁钢),得出:

${\mathrm\eta}_2\;=\;{\mathrm\eta}_3\;=\;\frac{2\;\cdot\;34.5}{75.5}\;=\;0.91\;\leq\;1$

因此实现了扭转屈曲安全性的设计计算。

SHAPE-THIN

在 SHAPE-THIN 中按照 [1] 中章节 4.5 计算纵向加固的钢板区域。 打开新建模型-基本数据的对话框时,激活附加计算区域的“c/t-比值和有效截面属性”。 这样在计算参数中选择 "EN 1993-1-1 和 EN 1993-1-5",以及在勾选附加计算区域的 "根据 EN 1993-1-5 中章节 4.5 计算有效截面" 。 有效宽度的计算按照 [1] 中章节 4.4(3) 在迭代过程中确定。 在该例子中仅计算了一次迭代,因此在 SHAPE-THIN 中只要设置一次迭代(见图 07)。

图片 07 - 计算参数

首先给出截面的单元。 通常 c/t-比值是自动的通过几何条件创建,也能够在表格“1.7 截面部分按照 EN 1993-1 分类”(见图 08)或者在相应的对话框中由用户自定义。

图片 08 - 截面部分分类

在表格“1.8 加劲肋”或者相应的对话框中定义加劲肋(见图 09)。

图片 09 - 加劲肋

此外在表格“1.9 屈曲区域”(见图 10)或者相应的对话框中给出屈曲区域。 为此要选择屈曲区域的单元以及给出横向加固距离 a。 如果没有定义横向加固距离 a,那就对计算取值 a = 10 000 mm。 自动检测在屈曲区域的加固。 那么屈曲区域就会从头至尾的被加固,此外还装上支撑。

图片 10 - 加固区域

使用按钮 [有效宽度] 可以查看有效截面的结果。

图片 11 - 结果

关键词

单个区域屈曲 整体屈曲

参考

[1]   Eurocode 3: Design of steel structures - Part 1-5: General rules - Plated structural elements; EN 1993-1-5:2006 + AC:2009
[2]   Kuhlmann, U.: Stahlbau-Kalender 2015 - Eurocode 3 - Grundnorm, Leichtbau. Berlin: Ernst & Sohn, 2015
[3]   Eurocode 3: Design of steel structures - Part 1‑1: General rules and rules for buildings; EN 1993‑1‑1:2010‑12
[4]   Beg, D.; Kuhlmann, U.; Davaine, L.; Braun, B.: Design of Plated Structures. Eurocode 3: Design of Steel Structures. Part 1-5 Design of Plated Structures. Berlin: Ernst & Sohn, 2011
[5]   Johansson, B.; Maquoi, R.; Sedlacek, G.; Müller, C.; Beg, D.: Commentary and Worked Examples to EN 1993-1-5, Plated Structural Elements. Luxemburg: Office for Official Publications of the European Communities, 2007

下载

更多信息

截面属性 薄壁截面
SHAPE-THIN 8.xx

截面设计软件

开口和闭口薄壁截面的截面属性,应力分析和塑性设计

首个许可价格
1,000.00 EUR
;