系统
截面属性
截面组成部分的内力
系统
截面属性
截面组成部分的内力
2024-05-30
009631
  • RFEM 5
  • SHAPE-THIN 8

系统

用于
  • 建筑结构竖向支撑结构体系
分享
2024-05-30
009632
  • RFEM 5
  • SHAPE-THIN 8
截面属性
用于
  • 建筑结构竖向支撑结构体系
分享
2024-05-30
009633
  • RFEM 5
  • SHAPE-THIN 8
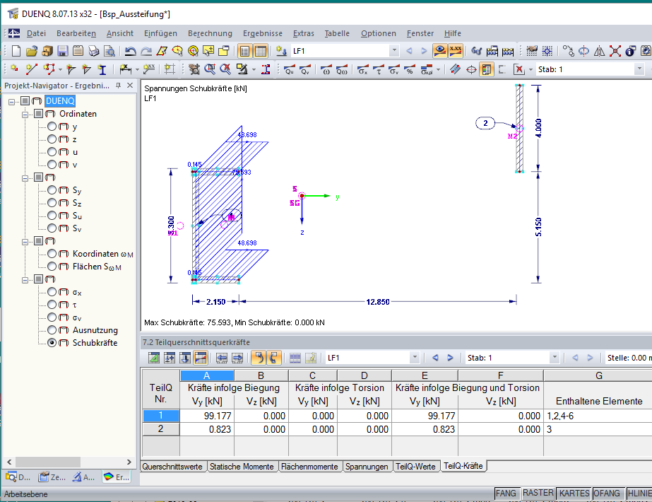
截面组成部分的内力
用于
  • 建筑结构竖向支撑结构体系
分享