排列选项
连续焊缝
DIN EN 1993-6表 5.1
有效荷载传播长度
Spannungen im Grenzzustand der Tragfähigkeit
角焊缝截面
Spannungen im Grenzzustand der Tragfähigkeit unterbrochen gegenüber
Spannungen im Grenzzustand der Tragfähigkeit unterbrochen versetzt
排列选项
连续焊缝
DIN EN 1993-6表 5.1
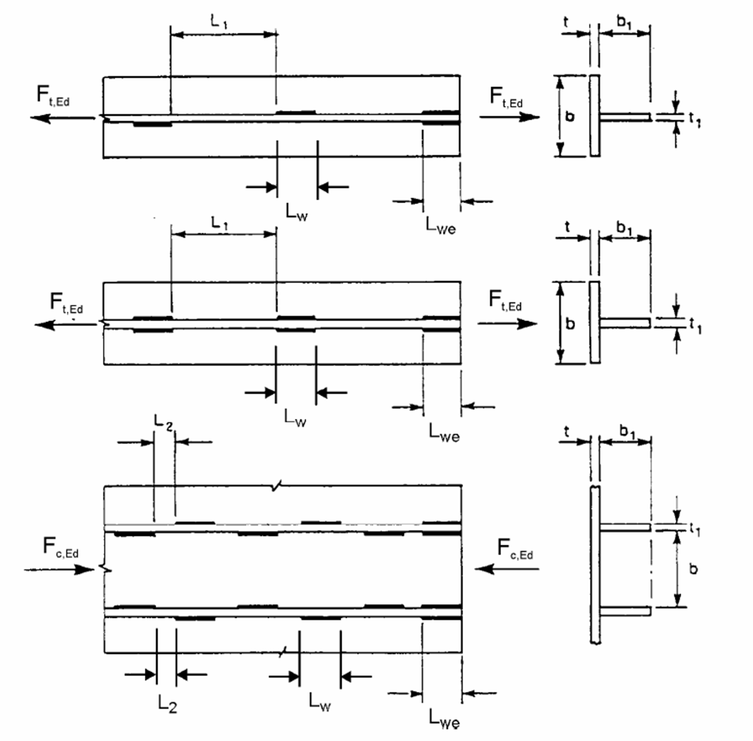
有效荷载传播长度
Spannungen im Grenzzustand der Tragfähigkeit
角焊缝截面
Spannungen im Grenzzustand der Tragfähigkeit unterbrochen gegenüber
Spannungen im Grenzzustand der Tragfähigkeit unterbrochen versetzt
2024-05-30
009717
  • CRANEWAY 8
  • 吊车与吊车梁
  • Eurocode 3

排列选项

用于
  • 按照 EN 1993-6 进行吊车梁轨道焊缝承载力极限状态设计
分享
2024-05-30
009718
  • CRANEWAY 8
  • 吊车与吊车梁
  • Eurocode 3
连续焊缝
用于
  • 按照 EN 1993-6 进行吊车梁轨道焊缝承载力极限状态设计
分享
2024-05-30
009719
  • CRANEWAY 8
  • 吊车与吊车梁
  • Eurocode 3
DIN EN 1993-6表 5.1
用于
  • 按照 EN 1993-6 进行吊车梁轨道焊缝承载力极限状态设计
分享
2024-05-30
009720
  • CRANEWAY 8
  • 吊车与吊车梁
  • Eurocode 3
有效荷载传播长度
用于
  • 按照 EN 1993-6 进行吊车梁轨道焊缝承载力极限状态设计
分享
2024-05-30
009721
  • CRANEWAY 8
  • 吊车与吊车梁
  • Eurocode 3
Spannungen im Grenzzustand der Tragfähigkeit
用于
  • 按照 EN 1993-6 进行吊车梁轨道焊缝承载力极限状态设计
分享
2024-05-30
009722
  • CRANEWAY 8
  • 吊车与吊车梁
  • Eurocode 3
角焊缝截面
用于
  • 按照 EN 1993-6 进行吊车梁轨道焊缝承载力极限状态设计
分享
2024-05-30
009723
  • CRANEWAY 8
  • 吊车与吊车梁
  • Eurocode 3
Spannungen im Grenzzustand der Tragfähigkeit unterbrochen gegenüber
用于
  • 按照 EN 1993-6 进行吊车梁轨道焊缝承载力极限状态设计
分享
2024-05-30
009724
  • CRANEWAY 8
  • 吊车与吊车梁
  • Eurocode 3
Spannungen im Grenzzustand der Tragfähigkeit unterbrochen versetzt
用于
  • 按照 EN 1993-6 进行吊车梁轨道焊缝承载力极限状态设计
分享