12811x
001402
2017-02-13

按照 EN 1993-6 进行吊车梁轨道焊缝承载力极限状态设计

吊车梁设计时需要考虑钢轨的焊接问题, Generell kann hierfür zwischen durchlaufenden oder nicht durchlaufenden Kehlnähten als Befestigung gewählt werden. Der folgende Beitrag soll einen Überblick über die Nachweisführungen und deren Besonderheiten geben, speziell bei Verwendung der DIN EN 1993-6.

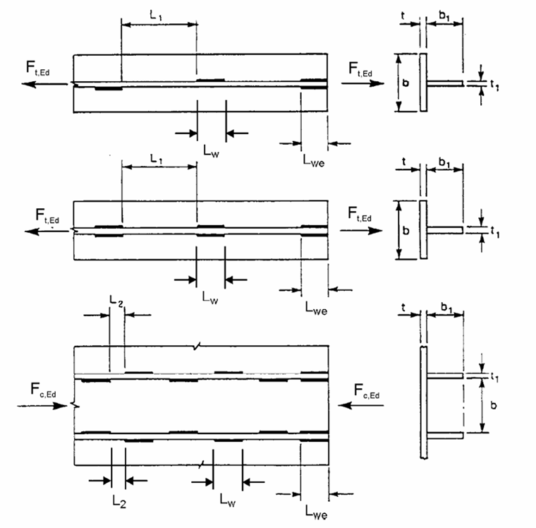
钢轨角焊缝的布置选项

间歇性角焊缝连接有两种类型。 如下图所示[2]

焊缝截面可以布置在相对的两侧或交错布置。 这种布置方式不利于设计,因为只有一个焊缝可以传递水平荷载。 上图中未显示的第三种选择当然是沿整个钢轨长度的连续角焊缝。

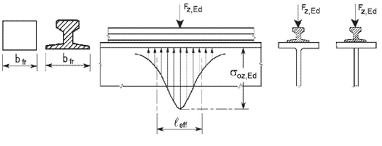
有效荷载长度

为了确定相应的焊缝应力,需要计算有效荷载长度。 EN 1993-6 对三种选项进行了区分,并在表 5.1 中提供了计算 leff的相应公式。

在这种情况下,leff是指上翼缘的下面。 但是在焊缝设计中以上翼缘的上表面为准。 因此leff减去双翼缘厚度tf

承载能力极限状态验算

钢轨焊缝应力按照 [2] 中指定的方向法计算。 在这种情况下,应力是指角焊缝的二等分面。 根据 [2] 中 (NA) 4.5.2 章,焊缝必须保持最小结构厚度。 该规范要求焊缝的最小厚度至少为 3 mm,或者应用下面的公式:

根据 EN 1993-6,在承载能力极限状态下没有考虑 1/4 轨头宽度的偏心轮荷载。 因此总是按轮荷载进行验算。

工况 1: 连续钢轨焊缝

对于间断的钢轨角焊缝,检查焊缝长度 lw是否小于计算的荷载长度 leff 。 通常,设计取两个值中的最小值。

工况 2: 相对两侧的间歇钢轨焊缝

案例3: 交错间歇式钢轨焊缝

因为在焊缝交错布置的情况下水平荷载只施加在焊缝截面上,所以HEd的除数2 被省略。


链接
参考


;