有效截面属性
有效截面属性
2024-05-30
016838
  • SHAPE-THIN 8
  • SHAPE-THIN 9
  • Eurocode 3
    • Eurocode 9
    • DIN 18800

有效截面属性

用于
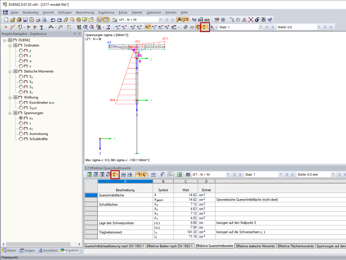
  • 在 SHAPE-THIN 中按照欧洲规范 EC 3 或 9 计算有效截面属性
分享