1963x
002517
2019-02-26

在 SHAPE-THIN 中按照欧洲规范 EC 3 或 9 计算有效截面属性

如何使用SHAPE-THIN根据EC 3或EC 9确定有效截面属性?


回复:

在截面的基本数据中激活 "c/t 比值和有效截面属性" 选项。 Über die Schaltfläche "Berechnungsparameter" können Sie dann den gleichnamigen Dialog aufrufen. Im zweiten Register legen Sie die gewünschte Norm fest (Bild 1).

Es sind dann die Elemente des Querschnitts einzugeben. Die c/t-Teile werden in der Regel automatisch aus den Geometriebedingungen erzeugt, können aber auch benutzerdefiniert in Tabelle 1.7 Querschnittsteile für Klassifizierung oder dem entsprechenden Dialog angelegt werden (Bild 2).

In Tabelle 2.1 Lastfälle (Bild 3) bzw. im Dialog "Lastfälle und Kombinationen bearbeiten" ist dann ein Lastfall und in Tabelle 3.1 bzw. im Dialog "X-Stelle bearbeiten" sind dann die Schnittgrößen zu definieren (Bild 4).


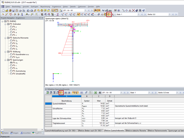
Die Ergebnisse des wirksamen Querschnitts sind nach der Berechnung mit der Schaltfläche Effektive Breiten zugänglich (Bild 5).


作者

von Bloh 女士为我们的客户提供技术支持,负责 SHAPE-THIN 软件的开发,以及钢结构和铝合金结构的开发。

下载


;