验证实例 1024 | 连接处剪力传递
验证实例 1024 | 连接处剪力传递
2024-08-13
042002
  • RFEM 6

验证实例 1024 | 连接处剪力传递

用于
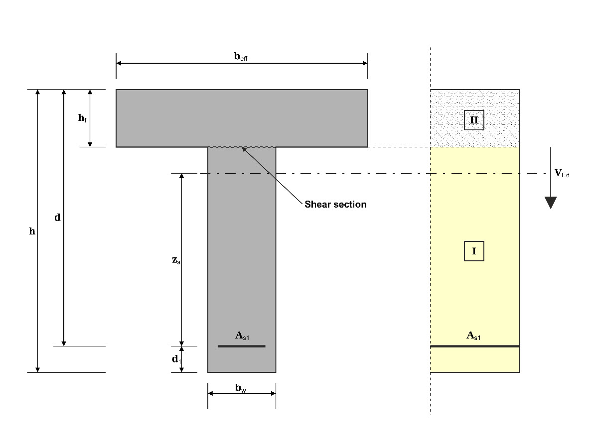
  • VE 1024 | 混凝土浇筑之间接口处的剪力按照DIN EN 1992-1-1
分享