1728x
001925
2024-12-30

Расчет углового шва по норме AISC в программе RFEM 6

Напряжения в сварных швах между поверхностями можно определить с помощью аддона «Расчёт напряжений-деформаций» в RFEM 6. Кроме того, предельное напряжение, определенное по действующей норме, может быть использовано для определения соотношения напряжений в сварном шве. В нашей статье речь пойдет о расчете угловых швов по норме AISC 360-22 [1] и двух примеров из тома 1 AISC: Примеры расчета [2].

AISC Пример J.1 Угловой шов при продольном сдвиге

Как показано на Рисунке 01, пластина толщиной ¼ дюйма приварена к пластине толщиной 3/8 дюйма. Произвольная форма плиты соответствует норме ASTM A572 класс 50. Сварной шов: Электроды 70 ksi, размер полки 3/16 дюйма, длина 57 дюймов.

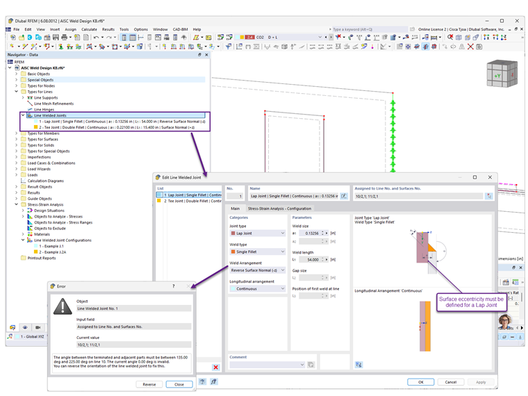
Доступно несколько типов соединений, включая стыковое соединение, угловое соединение, соединение внахлестку и тавровое соединение. Для первого примера выбраны соединение внахлестку и одинарный угловой (Рисунок 02). Расположение шва определяет, будет ли шов расположен на нижней или верхней части соединяемой поверхности. Если первоначальный выбор был неправильным, тогда в программе появляется сообщение об ошибке, в котором предлагается изменить ориентацию стержней. Для размера шва задайте толщину шва 3/16 дюйма x 0,707 = 0,13256 дюйма. Сначала выберите линию для сварного шва, а затем две поверхности, которые необходимо соединить. Длина шва равна общей длине выбранных линий.

В папке «Расчет напряжений-деформаций» можно отредактировать конфигурацию линейного сварного соединения по умолчанию (Рисунок 03). Деактивируйте нерелевантные типы напряжений.

Предельное напряжение может быть рассчитано по уравнению AISC J2-4 (без зоны сварного шва) для расчета LRFD. Затем это значение сравнивается с результирующим напряжением σ|J+S+W|.

Возможность перераспределения пиков местного напряжения по длине шва можно задать с помощью так называемых «Специальных опций» (Рисунок 04). Выбрать возможность «Постоянная» для поперечных и нормальных нагрузок. Для изгибающих нагрузок выберите возможность «Нет», чтобы игнорировать нежелательный момент в результирующем напряжении.

Доступные методы расчета напряжений, упрощенный и направленный, соответствуют норме EN 1993-1-8 [3]. В нашем примере рекомендуем выбрать «Упрощенный» метод расчета.

После запуска расчета, выберите в раскрывающемся меню возможность «Напряжения в линейных швах», чтобы просмотреть результат напряжения (Рисунок 05). Коэффициент напряжения из примера AISC равен 200 kips/206 kips = 0,971. Это соответствует коэффициенту напряжения 1,0 в RFEM.

AISC Пример J.2A Угловой шов с нагрузкой под углом

Во втором примере к верхней части полки балки приварена узловая накладка толщиной 3/4 дюйма (в модели предполагается, что толщина полки и стенки 1 см). Нагрузки применяются под углом 60° относительно продольной оси сварного шва. Произвольная форма плиты соответствует норме ASTM A572 класс 50. Сварной шов: Электроды 70 ksi, размер полки 5/16 дюйма, длина 15,4 дюйма (Рисунок 01).

Аналогично рабочему процессу, показанному выше, создайте новое линейное сварное соединение. Теперь выберите тавровое соединение и двойное угловое соединение (рисунок 06). Для размера шва задайте толщину шва 15/16 дюйма x 0,707 = 0,221 дюйма.

Поскольку в нашем примере используется другое предельное напряжение, необходимо добавить новую конфигурацию линейного сварного соединения.

Коэффициент направленного увеличения прочности по уравнению AISC J2-5 может быть применен для увеличения предельного напряжения для углового шва, нагруженного под углом.

Предельное напряжение в соответствии с уравнением AISC J2-4 (за исключением зоны сварного шва) для расчета LRFD:

Проверка правильности длины, рассчитанной на примере AISC, доказала, что использование напряжений в программе RFEM равно 1,0. Кроме напряжений, можно в графическом виде отобразить также внутренние силы. Общее касательное напряжение W можно умножить на длину шва для проверки общей приложенной нагрузки (рисунок 07).

Следует отметить, что для угловых швов необходимо также проверить дополнительные требования AISC. Они включают в себя минимальные и максимальные размеры, минимальную длину, свободную длину и другие ограничения, указанные в AISC, раздел J2.2b.


Автор

Cisca отвечает за обучение клиентов, техническую поддержку и за разработку наших программ для североамериканского рынка.

Ссылки


;