1728x
001925
30. Dezember 2024

AISC-Kehlnahtbemessung in RFEM 6

Die Spannungen von Schweißnähten zwischen Flächen können in RFEM 6 mit dem Add-On Spannungs-Dehnungs-Berechnung ermittelt werden. Des Weiteren kann die nach der Norm ermittelte Spannungsgrenze eingegeben werden, um das Spannungsverhältnis der Schweißnaht zu bestimmen. Dieser Beitrag konzentriert sich auf die Kehlnahtbemessung nach AISC 360-22 [1] anhand von zwei Beispielen aus AISC Band 1: Bemessungsbeispiele [2].

AISC Beispiel J.1 Kehlnaht unter Längsschub

Wie in Abbildung 1 oben dargestellt, wird ein ¼ inch dickes Blech mit einem 3/8 inch dicken Blech verschweißt. Die Platten sind ASTM A572 Grade 50. Schweißnaht: 70 ksi Elektroden, Schenkelgröße 3/16 inch, 68,5 mm lang.

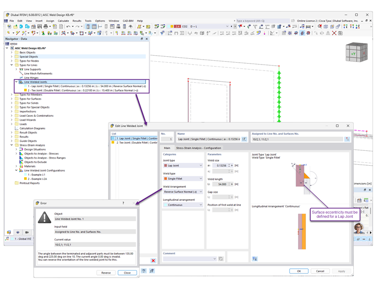
Es stehen verschiedene Anschlusstypen zur Verfügung, u. a. Stumpf-, Eck-, Überlapp- und T-Stoß. Für das erste Beispiel werden Überlappungsstoß und einzelne Ausrundung gewählt (Bild 2). Die Anordnung der Schweißnaht steuert, ob die Schweißnaht an der angeschlossenen Fläche auf der Unterseite oder auf der Oberseite angeordnet wird. Es erscheint eine Fehlermeldung mit dem Hinweis, die Orientierung umzukehren, wenn die Vorauswahl falsch ist. Als Schweißnahtgröße ist die Nahtdicke von 3/16 inch x 0.707 = 0.13256 inch einzugeben. Wählen Sie zuerst die Linie für die Schweißnaht und dann die beiden Flächen, die verbunden werden sollen. Die Länge der Schweißnaht ist gleich der Gesamtlänge der gewählten Linie(n).

Unter dem Ordner Spannungs-Dehnungs-Berechnung kann die voreingestellte Linienschweißverbindungs-Konfiguration bearbeitet werden (Bild 3). Deaktivieren Sie nicht relevante Spannungsarten.

Die Grenzspannung kann nach AISC Gleichung J2-4 (ohne den Schweißnahtbereich) für die LRFD-Bemessung berechnet werden. Dieser Wert wird dann mit der resultierenden Spannung σ verglichen|j+s+w|.

Die "Speziellen Optionen" (Bild 04) bieten die Möglichkeit, die lokalen Spannungsspitzen über die Länge der Schweißnaht umzuverteilen. Wählen Sie jeweils für die Schub- und Normallasten "Konstant" aus. Für die Biegebeanspruchungen wählen Sie "Ohne", um das ungewollte Moment in der resultierenden Spannung zu ignorieren.

Die verfügbaren Spannungsnachweisverfahren, Vereinfacht und Richtungsweise, entsprechen EN 1993-1-8 [3]. Wählen Sie für dieses Beispiel das Verfahren "Vereinfacht" aus.

Nach der Berechnung können Sie über das Pulldown-Menü Spannungen in Liniennähten das Spannungsergebnis einsehen (Bild 5). Das Spannungsverhältnis aus dem AISC-Beispiel beträgt 200 kips/206 kips = 0,971. Dies ist vergleichbar mit der Spannungsausnutzung von 1,0 in RFEM.

AISC-Beispiel J.2A Unter Winkel belastete Kehlnaht

Im vorliegenden zweiten Beispiel ist ein 3/4 inch dickes Knotenblech an der Oberseite des Trägerflansches angeschweißt (im Modell wird ein 2,54 mm dicker Flansch und Steg im Modell angenommen). Die Lasten werden in einem Winkel von 60° zur Nahtlängsachse angesetzt. Die Platten sind ASTM A572 Grade 50. Schweißnaht: Elektroden 70 ksi, Schenkelgröße 5/16 inch, 15,4 inches lang (Bild 01).

Analog zum oben gezeigten Arbeitsablauf erstellen Sie eine neue Linienschweißverbindung. T-Stoß und doppelte Ausrundung wählen (Bild 06) Als Nahtgröße ist eine Nahtdicke von 5/16 inch x 0.707 = 0.221 inch einzugeben.

Eine neue Linienschweißverbindungs-Konfiguration muss hinzugefügt werden, da in diesem Beispiel eine andere Grenzspannung verwendet wird.

Der richtungsabhängige Festigkeitserhöhungsfaktor nach AISC Gleichung J2-5 kann verwendet werden, um die Grenzspannung für eine unter einem Winkel belastete Kehlnaht zu erhöhen.

Grenzspannung nach AISC Gleichung J2-4 (ohne Schweißnahtbereich) für LRFD-Bemessung:

In RFEM ergab ein Spannungsverhältnis von 1.0 die erforderliche Länge, die im AISC-Beispiel berechnet wurde. Neben der Spannung können auch die Schnittgrößen grafisch angezeigt werden. Die Gesamtschubspannung W kann mit der Nahtlänge multipliziert werden, um die insgesamt aufgebrachte Last zu überprüfen (Bild 07).

Es ist zu beachten, dass auch zusätzliche AISC-Anforderungen für Kehlnähte zu prüfen sind. Dazu gehören Mindest- und Maximalgrößen, Mindestlänge, effektive Länge und andere Einschränkungen, die im AISC Abschnitt J2.2b behandelt werden.


Autor

Cisca ist für die Schulung der Kunden, den technischen Support und die Programmentwicklung für den nordamerikanischen Markt verantwortlich.

Referenzen


;