1728x
001925
2024-12-30

Dimensionamento de cordões de soldadura AISC no RFEM 6

As tensões de soldadura entre superfícies podem ser determinadas com o módulo Análise tensão-deformação no RFEM 6. Além disso, o limite da tensão determinado de acordo com a norma aplicável pode ser introduzido para determinar a relação de tensão da soldadura. Este artigo foca-se no dimensionamento de cordões de soldadura de acordo com a norma AISC 360-22 [1] utilizando dois exemplos do AISC Volume 1: Exemplos de dimensionamento [2].

Exemplo AISC J.1 Cordão de soldadura em corte longitudinal

Como apresentado na Figura 01, uma chapa com 60 mm de espessura está soldada a uma chapa com 3/8 de polegada. As chapas são ASTM A572 classe 50. Soldadura: 70 ksi elétrodos, tamanho da aba 70 mm, 70 cm de comprimento.

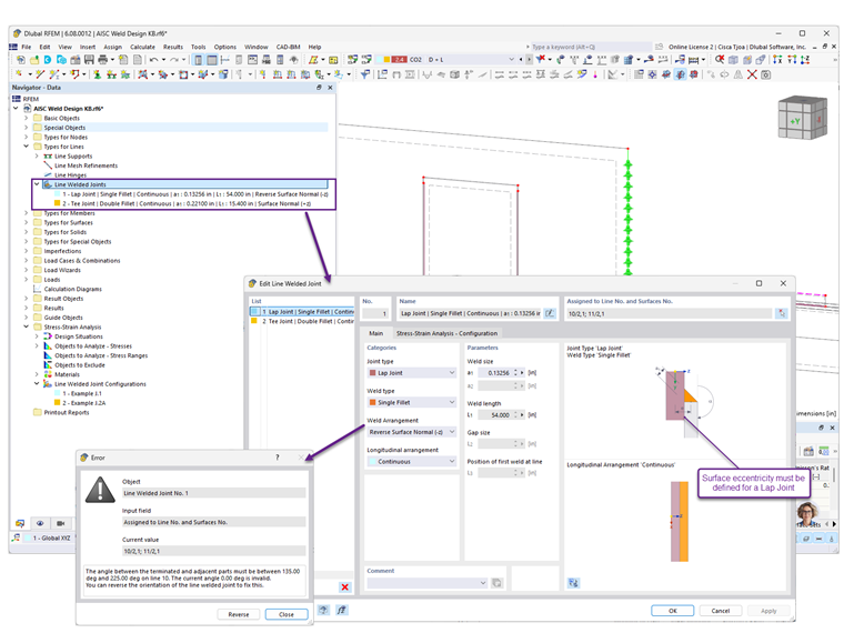
Estão disponíveis vários tipos de ligações, incluindo ligações de topo, ligações de canto, ligações sobrepostas e ligações em T. Para o primeiro exemplo, estão selecionados a ligação sobreposta e o cordão simples (Figura 2). A disposição da soldadura controla se a soldadura está disposta na parte inferior ou na parte superior da superfície ligada. Aparece uma mensagem de erro a recomendar a inversão da orientação se a seleção inicial estiver incorreta. Para o tamanho da soldadura, introduz a espessura da garganta de 3/16 polegadas x 0,707 = 0,13256 polegadas. Selecione primeiro a linha para a soldadura e depois as duas superfícies que pretendem ser unidas. O comprimento da soldadura é igual ao comprimento total das linhas selecionadas.

Na pasta Análise tensão-deformação , é possível editar a configuração predefinida da ligação com soldadura de linha (Figura 03). Os tipos de tensão irrelevantes podem ser desativados.

A tensão limite pode ser calculada de acordo com a equação AISC J2-4 (excluindo a área de soldadura) para o dimensionamento LRFD. Este valor é então comparado com a tensão resultante, σ|j+s+al|.

As "Opções especiais" (Figura 04) permitem redistribuir os picos de tensão locais ao longo do comprimento do cordão de soldadura. Selecione "Constante" para as cargas de corte e normal. Para as cargas de flexão, selecione "Nenhum" para ignorar o momento não desejado na tensão resultante.

Os métodos de análise de tensões disponíveis, Simplificado e Direcional, são de acordo com a EN 1993-1-8 {%>

Após executar o cálculo, selecione Tensões em soldaduras de linha no menu pendente para visualizar o resultado da tensão (Figura 5). A relação de tensão do exemplo AISC é igual a 200 kips/206 kips = 0,971. Isto é comparável à relação de tensão de 1,0 no RFEM.

Exemplo de AISC J.2A Cordão de soldadura carregado com um ângulo

Neste segundo exemplo, uma chapa de gusset com 3/4 de polegada de espessura é soldada na parte superior do banzo da viga (banzo e alma com 30 mm de espessura são assumidos no modelo). As cargas são aplicadas com um ângulo de 60 graus em relação ao eixo longitudinal da soldadura. As chapas são ASTM A572 classe 50. Soldadura: 70 ksi elétrodos, tamanho das abas 15/40 mm, 400 mm de comprimento (Figura 01).

Semelhante ao fluxo de trabalho apresentado acima, crie uma nova ligação com soldadura de linha. Selecione ligação em T e cordão de soldadura duplo (Figura 06). Para o tamanho da soldadura, introduz uma espessura da garganta de 5/16 polegadas x 0,707 = 0,221 polegadas.

É necessário adicionar uma nova configuração de ligação com soldadura de linha , uma vez que é utilizada uma tensão limite diferente neste exemplo.

O fator de aumento da resistência direcional segundo a equação J2-5 da AISC pode ser utilizado para aumentar a tensão limite para um cordão de soldadura carregado com ângulo.

Tensão limite de acordo com a equação AISC J2-4 (excluindo a área de soldadura) para dimensionamento LRFD:

A relação de tensões de 1,0 no RFEM permitiu verificar o comprimento necessário calculado no exemplo do AISC. Além da tensão, os esforços internos também podem ser representados graficamente. A tensão de corte total W pode ser multiplicada pelo comprimento da soldadura para verificar a carga aplicada total (Figura 07).

Deve ter em atenção que os requisitos adicionais da AISC para cordões de soldadura também tem de ser verificados. Isto inclui os tamanhos mínimo e máximo, comprimento mínimo, comprimento efetivo e outras limitações abrangidas na Secção J2.2b da AISC.


Autor

A Eng.ª Cisca é responsável pelas formações para clientes, apoio técnico e desenvolvimento de programas para o mercado norte-americano.

Referências


;