986x
005013
2021-06-01

Utilização do tipo de carga "Pré-esforço final"

Posso apresentar a carga que é aplicada iterativamente à barra no caso do tipo de carga "Pré-esforço final"?


Resposta:

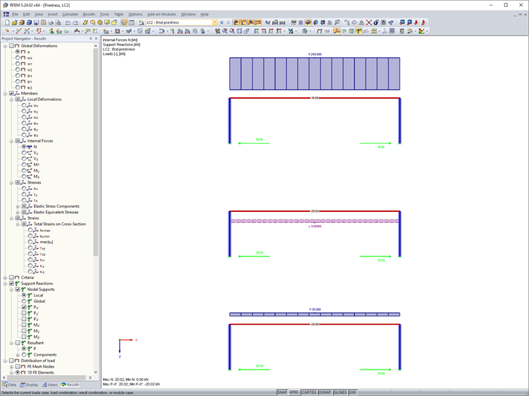
Ao selecionar o tipo de carga "Pré-esforço final" na definição da carga do RFEM 5, o programa aumenta a carga internamente até que a força axial seja igual à força de pré-esforço.

A carga interna pode ser visualizada através da apresentação da carga de deformação contínua na direção x no navegador de projetos – Resultados.

Isto resulta numa deformação de -0,00168 para o pré-esforço final do sistema. Com o módulo de elasticidade da barra e a respetiva secção, também é possível determinar o pré-esforço inicial:
V = ɛ * E * A = 0,00168 * 21.000 * 7,07 = 249,4 kN


Autor

O Eng.º Hoffmann presta apoio técnico aos clientes da Dlubal Software e é responsável pela coordenação de todas as questões e atividades técnicas.



;