903x
46x
002678
2021-09-01
(0)
0 de 5 estrelas
5 estrelas 0
4 estrelas 0
3 estrelas 0
2 estrelas 0
1 estrela 0

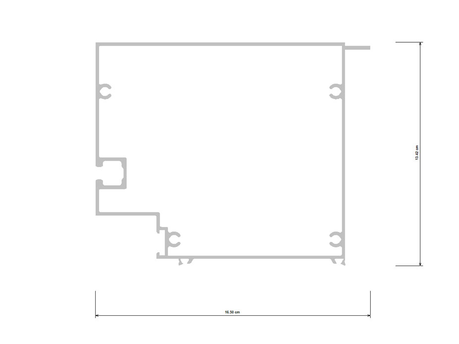
Perfil de alumínio

Número de nós 2
Número de superfícies 153
Número de sólidos 153

Pode fazer o download do modelo estrutural para fins de aprendizagem ou para os seus projetos. No entanto, não assumimos qualquer responsabilidade ou garantia pela precisão ou integridade dos modelos.

Reportar este modelo 3D