2889x
001919
21.11.2024

Posouzení betonové smykové stěny v programu RFEM 6: Průvodce krok za krokem

V tomto příspěvku vás krok za krokem provedeme posouzením smykových stěn v programu RFEM 6.

Konstrukce, které navrhujeme, jsou vystaveny různým zatížením, včetně bočních sil, jako je vítr, zemětřesení a dalším vodorovným účinkům, které jsou zvláště náročné pro vysoké budovy. Tyto síly působící vodorovně ověřují stabilitu a integritu konstrukcí, a proto je nezbytné zajistit, aby jim budovy odolávaly bez nadměrného pohybu nebo poškození. V tomto ohledu je analýza bočních sil rozhodujícím aspektem stavebního inženýrství, který se zaměřuje na predikci bočních posunů, vnitřních sil a celkového chování budovy při takových zatíženích.

Aby konstrukce odolávaly bočním silám, jako je vítr a zemětřesení, spoléhají se na specifické prvky navržené pro stabilitu, pevnost a poddajnost. Tyto komponenty spolupracují, aby udržely integritu budovy, kontrolovaly naklonění a minimalizovaly škody. Smykové stěny jsou jedním z nejdůležitějších prvků pro přenos bočních sil. V tomto příspěvku si ukážeme, jak lze v programu RFEM 6 posoudit smykové stěny na příkladu stěn vícepodlažní budovy znázorněné na obrázku 1.

Posouzení smykových stěn v programu RFEM 6 v addonu Model budovy

Budova na obrázku 1 je vícepodlažní budova se smykovými stěnami. RFEM 6 nabízí pro posouzení takových budov addon Model budovy. Tento výkonný nástroj vám umožňuje definovat budovu po podlažích a podle potřeby je různě upravovat. Podporuje také integraci smykových stěnových a prostorových prvků a umožňuje přiřazení diafragmat k podlažím, přičemž je k dispozici několik typů diafragmat. Tyto prvky jsou rozhodující pro posouzení bočních sil, protože vytvářejí soudržný systém, který je schopen účinně přenášet boční síly.

V našem článku se zabýváme především posouzením smykových stěn, konkrétně těch, které jsou znázorněny na obrázku 1. Všechny tři stěny sahají od přízemí až po nejvyšší podlaží, přičemž dvě z nich (stěna 1 a stěna 2) jsou spojeny nadpražními prvky. V takových případech může být velmi užitečné aktivovat buňky plochy jako speciální objekty v navigátoru. Tato funkce umožňuje programu automaticky rozpoznat buňky plochy, což usnadňuje rozlišení mezi smykovými stěnami a nadpražními prvky, které je spojují, jak je znázorněno na obrázku 2.

Zadání smykových stěn spustíme tak, že klikneme pravým tlačítkem myši na složku "Smyková stěna" v navigátoru a otevře se příslušné okno (viz obrázek 3). Nejdříve vybereme plochy nebo buňky ploch jejich zadáním v pravém horním rohu okna, jejich výběr lze provést graficky. Pro první stěnu vybereme čtyři buňky plochy umístěné vlevo od otvorů pro definování průběžné smykové stěny od základu po horní podlaží konstrukce (viz obrázek 2). Tento postup opakujeme pro smykovou stěnu na pravé straně otvoru (stěna 2) a pro stěnu 3, jak je znázorněno výše na obrázku 1. Všimněte si, že stěna 3 je definována pouze pomocí ploch, protože zde nejsou žádné otvory.

Po zadání stěn je možné nastavit parametry posouzení pro každou stěnu zvlášť nebo vybrat všechny stěny a použít stejné nastavení pro všechny najednou. Začneme aktivací volby "Generovat výsledkové řezy" (viz obrázek 3), která umožňuje vytvořit vodorovné řezy ve smykové stěně a zobrazit výsledky, například součet vnitřních sil, ve formátu tabulky. Vzhledem k tomu, že se soustředíme na posouzení stěn, nezapomeneme také zaškrtnout položku „Vlastnosti posouzení“, která umožňuje zadat potřebné vstupní údaje.

Pokud jsou aktivovány "Vlastnosti posouzení", jsou v okně k dispozici další záložky. V těchto záložkách je možné zadat detaily, jako je krytí betonem pro smykové stěny (viz obrázek 4) nebo zadat podélnou výztuž (viz obrázek 5).

Pro podélnou výztuž jsou k dispozici různé typy výztužných prutů, včetně symetrických, asymetrických, rovnoměrně obklopujících, liniových i jednoduchých. V tomto příkladu zvolíme typ "Rovnoměrně obklopující" s 22 pruty #7 rovnoměrně rozmístěnými okolo stěny 1 a stěny 2 (viz obrázek 5). Pro stěnu 3 je však kvůli její větší šířce použito 40 prutů #7.

Podobně jako u podélné výztuže je možné definovat smykovou výztuž pro smykové stěny. Můžete nastavit parametry, jako je typ třmínku, materiál, velikost prutu, průměr, počet a vzdálenost (obrázek 6). Kromě toho je možné aktivovat spony zaškrtnutím příslušného políčka, a umístit je tak přes podélné pruty. Pokud chcete sponu na určitém místě vyloučit, jednoduše ji deaktivujte kliknutím na podélný prut. Sponu lze také znovu aktivovat opětovným kliknutím na podélný prut.

Návrhovou podporu lze přidat v bodech, kde se smyková stěna napojuje na desky/podlahy (viz obrázek 7). Tyto podpory lze nastavit v příslušném okně (jak je znázorněno na obrázku 8). V tomto příkladu jsou počáteční i koncové podpory smykové stěny typu Beton, s tloušťkou 25,4 cm, která odpovídá tloušťce desky zapuštěné příčně do stěny. Návrhová podpora na vnitřních uzlech by měla být stejného typu a tloušťky, ale je třeba vybrat možnost "Vnitřní podpora", aby se v tomto případě nejednalo o koncovou podporu (viz obrázek 8).

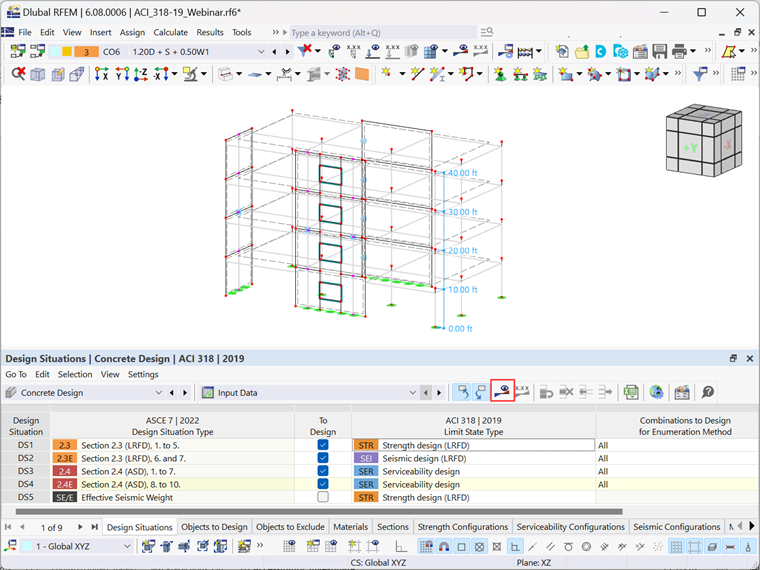
Jakmile jsou parametry posouzení nastaveny, můžete vybrat vstupní data pro výpočet v addonu Posouzení železobetonových konstrukcí (obrázek 9). Tento proces zahrnuje výběr příslušných návrhových situací, zadání typu mezního stavu pro každou z nich, definování objektů pro posouzení atd.

Výsledky včetně detailů výztuže a využití smykových stěn jsou prezentovány v tabulkové i grafické podobě, jak je znázorněno na obrázku 10. Můžete tak například graficky překrýt navrženou výztuž a nutnou výztuž a zkontrolovat, zda navržená výztuž překračuje nutné množství. Pokud tomu tak není, lze pro další posouzení vizualizovat také nepokrytou výztuž.

U využití jsou kromě jejich tabulkového a grafického znázornění k dispozici podrobné informace pro každé posouzení pomocí příslušného tlačítka, které nabízí detailní pohled na výpočty (obrázek 11).


Autor

Ing. Kirova je ve společnosti Dlubal zodpovědná za tvorbu odborných článků a poskytuje technickou podporu zákazníkům.

Odkazy


;