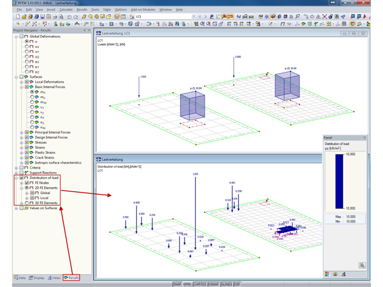
Например, если на поверхность с грубой сеткой КЭ приложить геометрически небольшую нагрузку в виде четкого прямоугольника, эта нагрузка распределится по гораздо большей поверхности.
зарегистрируйтесь во Длупал Экстранет, чтобы максимально использовать программное обеспечение и иметь эксклюзивный доступ к вашим личным данным.
зарегистрируйтесь во Длупал Экстранет, чтобы максимально использовать программное обеспечение и иметь эксклюзивный доступ к вашим личным данным.
зарегистрируйтесь во Длупал Экстранет, чтобы максимально использовать программное обеспечение и иметь эксклюзивный доступ к вашим личным данным.
Например, если на поверхность с грубой сеткой КЭ приложить геометрически небольшую нагрузку в виде четкого прямоугольника, эта нагрузка распределится по гораздо большей поверхности.
Г-н Фрёлих оказывает техническую поддержку нашим заказчикам и отвечает за разработки железобетонных конструкций.