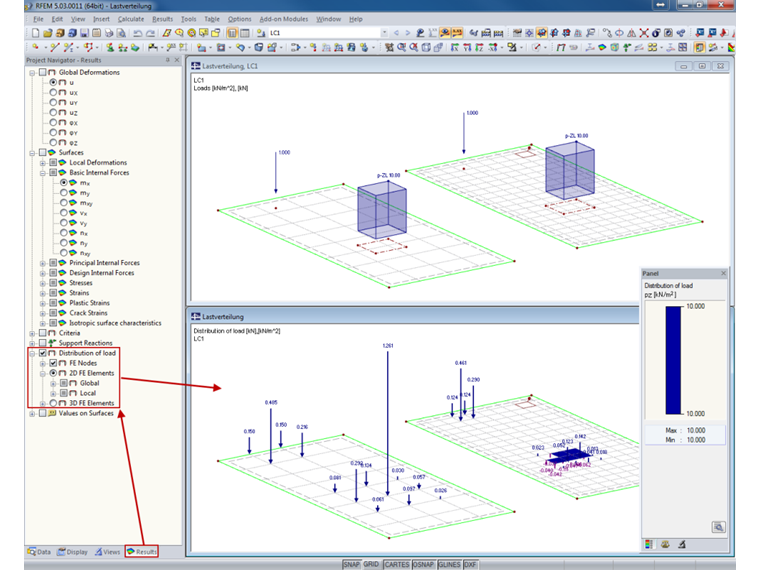
Ad esempio, se si inserisce un carico rettangolare libero geometricamente piccolo su una superficie con una mesh EF grossolana, il carico viene distribuito su una superficie molto più grande.
Registrati all'extranet Dlubal per ottenere il massimo dal software e avere accesso esclusivo ai tuoi dati personali.
Registrati all'extranet Dlubal per ottenere il massimo dal software e avere accesso esclusivo ai tuoi dati personali.
Registrati all'extranet Dlubal per ottenere il massimo dal software e avere accesso esclusivo ai tuoi dati personali.
Ad esempio, se si inserisce un carico rettangolare libero geometricamente piccolo su una superficie con una mesh EF grossolana, il carico viene distribuito su una superficie molto più grande.
Il Sig. Fröhlich fornisce supporto tecnico ai nostri clienti ed è responsabile dello sviluppo nel settore delle strutture in cemento armato.