Ответ:
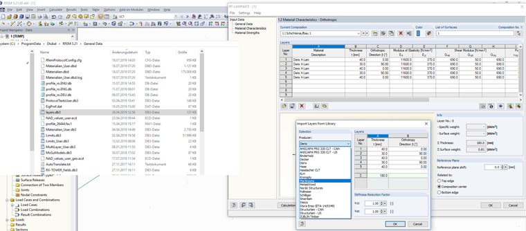
При стандартной установке, структуры слоёв производителей сохраняются в папке C:\ProgramData\Dlubal\RFEM 5.21\General Data,
зарегистрируйтесь во Длупал Экстранет, чтобы максимально использовать программное обеспечение и иметь эксклюзивный доступ к вашим личным данным.
зарегистрируйтесь во Длупал Экстранет, чтобы максимально использовать программное обеспечение и иметь эксклюзивный доступ к вашим личным данным.
зарегистрируйтесь во Длупал Экстранет, чтобы максимально использовать программное обеспечение и иметь эксклюзивный доступ к вашим личным данным.
При стандартной установке, структуры слоёв производителей сохраняются в папке C:\ProgramData\Dlubal\RFEM 5.21\General Data,
Г-н Кун отвечает за разработку продуктов для деревянных конструкций и оказывает техническую поддержку нашим клиентам.