Answer:
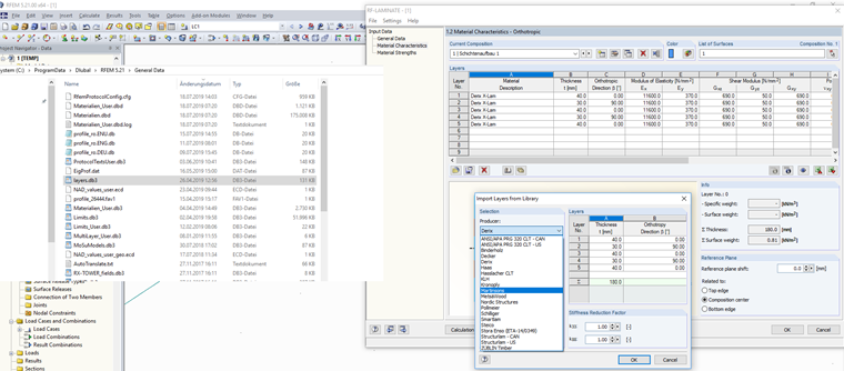
For standard installation, the layer structures of the producers are saved under C:\ProgramData\Dlubal\RFEM 5.21\General Data.
Sign up for the Dlubal Extranet to get most of the software and have exclusive access to your personal data.
Sign up for the Dlubal Extranet to get most of the software and have exclusive access to your personal data.
Sign up for the Dlubal Extranet to get most of the software and have exclusive access to your personal data.
For standard installation, the layer structures of the producers are saved under C:\ProgramData\Dlubal\RFEM 5.21\General Data.
Mr. Kuhn is responsible for developing products for timber structures, and provides technical support for our customers.