Odpověď:
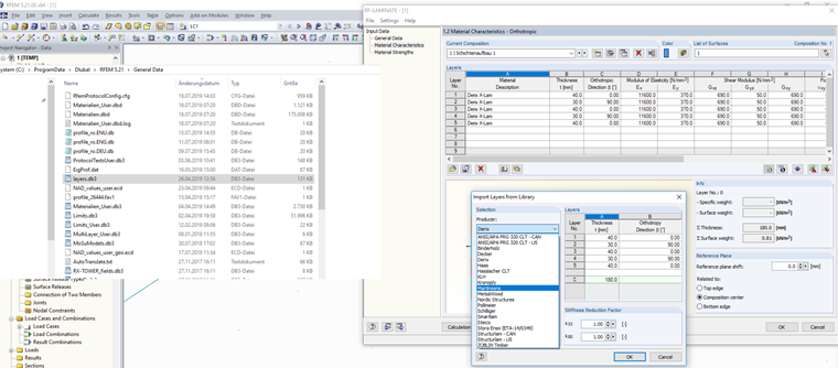
V případě standardní instalace jsou skladby vrstev od výrobců uloženy ve složce C:\ProgramData\Dlubal\RFEM 5.21\General Data.
Zaregistrujte se do extranetu Dlubal, abyste získali většinu softwaru a měli exkluzivní přístup k vašim osobním údajům.
Zaregistrujte se do extranetu Dlubal, abyste získali většinu softwaru a měli exkluzivní přístup k vašim osobním údajům.
Zaregistrujte se do extranetu Dlubal, abyste získali většinu softwaru a měli exkluzivní přístup k vašim osobním údajům.
V případě standardní instalace jsou skladby vrstev od výrobců uloženy ve složce C:\ProgramData\Dlubal\RFEM 5.21\General Data.
Ing. Kuhn je zodpovědný za vývoj produktů pro dřevěné konstrukce a poskytuje technickou podporu zákazníkům.