注册成为 Dlubal 软件公司外部网用户,畅享软件资源,独享个性化数据。
Dlubal Software 帮助您创建和验证任何太阳能安装系统。在单一环境中高效地处理钢、铝和混凝土结构。
Dlubal 的新 API 服务 (gRPC) 为您提供了一个基于 Python 和 C# 的结构分析软件灵活接口,可以直接访问整个 Dlubal 产品系列。
RFEM 6 是模块化程序家族的基础,用于定义板、壁、壳和杆结构以及体积和接触元件的结构、材料和作用。
使用RSTAB 9,严谨的结构工程师可以使用一款3D杆件软件,它满足现代工程建设的要求,并反映当前的技术水平。
RSECTION 支持结构工程师,通过计算各种截面的型钢特性,并进行后续应力分析。
RWIND 3 是一个数字风洞,用于模拟任意建筑几何形状周围的风流并计算其表面的风荷载。
新的Dlubal API服务(gRPC)为您提供了一个基于Python和C#的静力学软件灵活接口,直接访问整个Dlubal产品系列。利用无缝且强大的集成,可理想地应用于您的Dlubal软件中,适用于参数化建模和复杂的优化任务。
使用CBFEM设计和分析钢连接,符合EN 1993‑1‑8和AISC 360标准,完全集成在RFEM 6中,以加快和提高结构工作的准确性。
该平台提供一个空间用于技术咨询、结构分析和设计的深入讨论、功能建议以及与Dlubal团队和其他用户的直接互动。
需要帮助吗?访问免费的支持选项,包括全天候人工智能协助、电子邮件支持和网络研讨会。
找到有关Dlubal软件的常见问题的快速答案。搜索或筛选数百个常见问题以快速解决问题。
加入行业领导者,探索结构工程和软件的解决方案。通过我们的现场课程提升您的技能!
探索旨在提升您的工程工作流程的尖端工具和增强功能。
您想体验一下 Dlubal 软件的强大功能吗? 机会就摆在眼前! 使用我们的 90 天免费完整版,您可以全面测试我们的所有程序。
在Dlubal免费区域,您可以访问网络研讨会、文章和软件测试机会——所有内容均免费且在一个地方清晰整合。
探索数以千计的现成结构模型。下载、调整并用作模板,以加速设计流程。
随时获得专家帮助。享受免费的 AI 协助、电子邮件支持、在线研讨会,以及针对服务合同专业用户的高级服务。
借助 RFEM 6 开始您的第一步,发现您可以多快进行建模和计算。通过附加组件进行自定义,以获得更多可能性。
全球已有数千名学生受益于Dlubal软件。在整个学习过程中,享受免费访问、培训和专家支持。
我们向您介绍使用 Dlubal 软件实现其项目的客户。了解我们的全球客户如何利用先进的静力和动力分析工具,在建筑和工程领域实施创新解决方案。
了解世界各地的顶尖工程师如何信任我们的解决方案,以提升他们的项目。
加入工程软件的全球领导者,将您的职业生涯提升到新的高度。
揭示我们的团队如何塑造工程的未来。体验创新、成长和激动人心的挑战。
我们的专职工程师随时随地为您提供建模、设计和技术挑战方面的帮助。
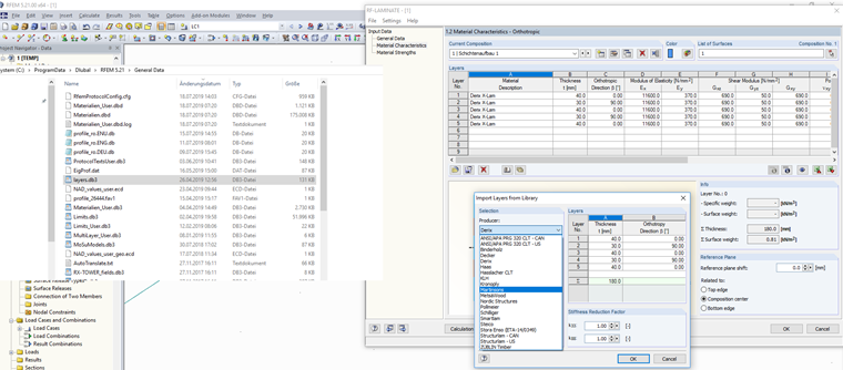
对于标准安装,生成器的层结构保存在 C:\ProgramData\Dlubal\RFEM 5.21\General Data 下。
Kuhn 先生负责木结构产品的开发工作,并为客户提供技术支持。