Antwort:
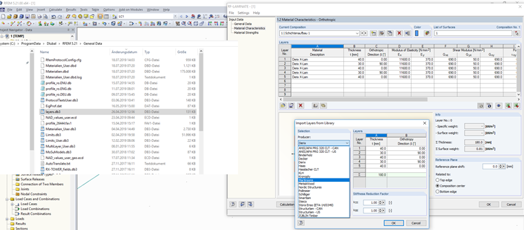
Die Aufbauten der Hersteller werden bei einer Standardinstallation unter C:\ProgramData\Dlubal\RFEM 5.21\General Data abgespeichert.
Registrieren Sie sich für das Dlubal-Extranet, um die Software optimal zu nutzen und exklusiven Zugang zu Ihren persönlichen Daten zu erhalten.
Registrieren Sie sich für das Dlubal-Extranet, um die Software optimal zu nutzen und exklusiven Zugang zu Ihren persönlichen Daten zu erhalten.
Registrieren Sie sich für das Dlubal-Extranet, um die Software optimal zu nutzen und exklusiven Zugang zu Ihren persönlichen Daten zu erhalten.
Die Aufbauten der Hersteller werden bei einer Standardinstallation unter C:\ProgramData\Dlubal\RFEM 5.21\General Data abgespeichert.
Herr Kuhn ist mit der Entwicklung und Qualitätssicherung im Bereich Holzbau betraut und im Kundensupport aktiv.