Réponse:
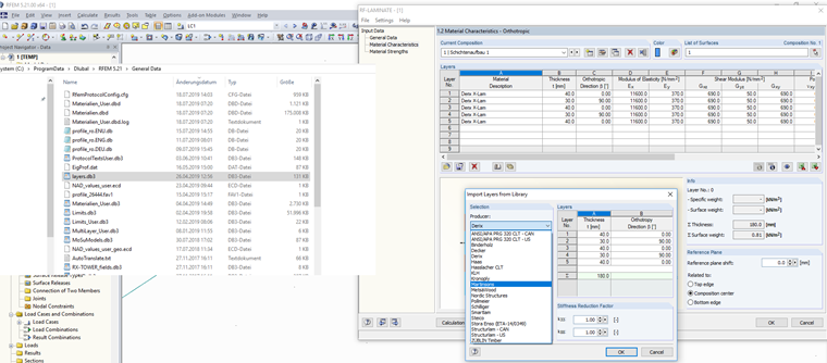
Dans le cas d'une installation standard, les structures des fabricants sont stockées dans C:\ProgramData\Dlubal\RFEM 5.21\General Data.
Inscrivez-vous à l’Extranet Dlubal pour tirer le meilleur parti du logiciel et avoir un accès exclusif à vos données personnelles.
Inscrivez-vous à l’Extranet Dlubal pour tirer le meilleur parti du logiciel et avoir un accès exclusif à vos données personnelles.
Inscrivez-vous à l’Extranet Dlubal pour tirer le meilleur parti du logiciel et avoir un accès exclusif à vos données personnelles.
Dans le cas d'une installation standard, les structures des fabricants sont stockées dans C:\ProgramData\Dlubal\RFEM 5.21\General Data.
M. Kuhn est responsable du développement de produits pour les structures en bois et fournit une assistance technique à nos clients.