1827x
004505
2020-07-13

Необычные значения площадей сдвига в программе SHAPE-THIN для комбинированных сечений

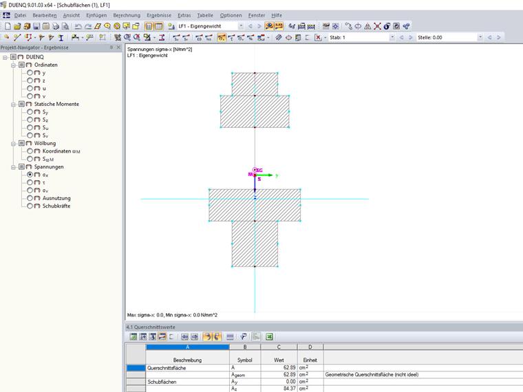
У составного сечения в программе SHAPE-THIN площадь сдвигаAy больше, чем общая площадь сечения A. Wie kann das sein?


Ответ:

Необычные значения площадей сдвига, то есть больше, чем A, могут встречаться, например, у параметрических тонкостенных профилей с нетипичной геометрией, которые не могут достигать идеально тонкостенной формы.

Поскольку площадь сдвига рассчитывается в программе SHAPE-THIN по теории тонкостенных профилей, должно заданное сечение всегда иметь обоснованные размеры, что касается соотношения ширины к толщине. Потому толщиной t* соединительного нулевого элемента можно легко повлиять, например, на перенос сдвига и, следовательно, на величину площади сдвига.


Автор

Sandy оказывает поддержку в Customer Support по техническим вопросам, связанным с программным обеспечением. Она надежно осваивает новые темы и способствует разработке четко структурированных решений.

Ссылки


;