1827x
004505
2020-07-13

Valores incomuns das áreas de corte no SHAPE‑THIN para secções combinadas

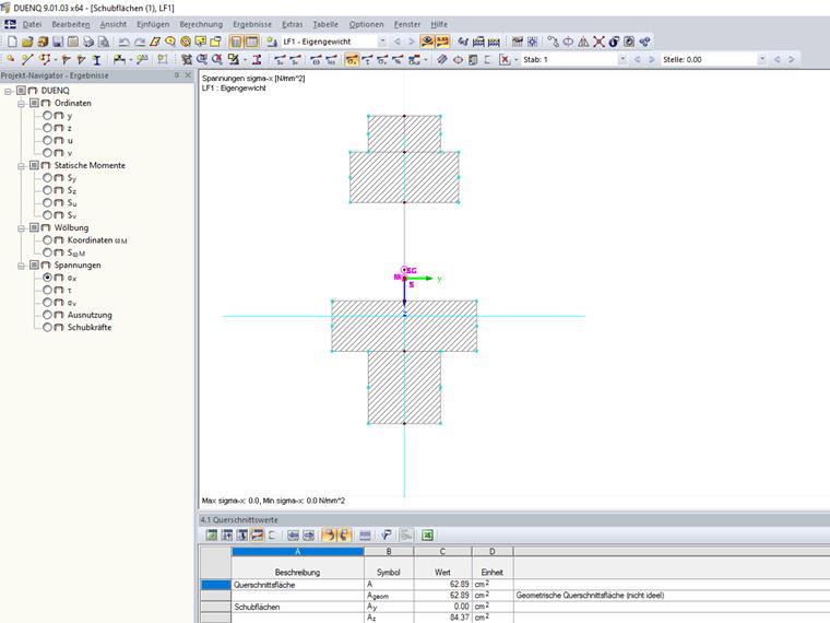
Para uma secção combinada no SHAPE‑THIN, a área de corte Ay é maior do que a área total de secção A. Qual é a razão para isso?


Resposta:

Para secções paramétricas de parede fina, por exemplo, que têm uma geometria atípica e não podem ser idealmente de parede fina, podem ocorrer valores invulgares nas áreas de corte, superiores a A.

As áreas de corte são calculadas de acordo com a teoria das secções de parede fina no SHAPE‑THIN. Por isso, a secção definida deve ter dimensões razoáveis tendo em consideração as relações largura-espessura. A espessura t* do elemento nulo de ligação pode ser utilizada para afetar a transferência de corte e, portanto, o valor de uma área de corte.


Autor

A Sandy apoia o Customer Support em questões técnicas relacionadas com o software. Ela familiariza-se de forma fiável com novos temas e contribui para soluções claramente estruturadas.

Referências


;