1827x
004505
2020-07-13

Valori insoliti delle aree di taglio in SHAPE‑THIN per sezioni trasversali combinate

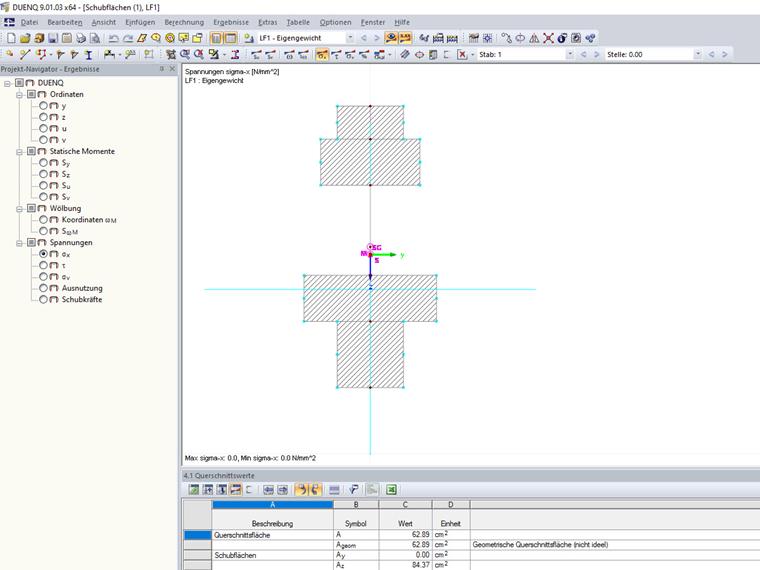
Per una sezione trasversale combinata in SHAPE-THIN, l'area di taglio Ay è maggiore dell'area della sezione trasversale totale A. Wie kann das sein?


Risposta:

Ad esempio, per sezioni parametriche a pareti sottili che hanno una geometria atipica e potrebbero non essere idealmente in parete sottile, si possono verificare dei valori insoliti delle aree di taglio, cioè maggiori di A.

Le aree di taglio sono calcolate secondo la teoria delle sezioni trasversali in pareti sottili in SHAPE‑THIN. Pertanto, la sezione trasversale definita dovrebbe avere dimensioni ragionevoli rispetto ai rapporti larghezza-spessore. Lo spessore t* dell'elemento fittizio di collegamento può essere utilizzato per influenzare il trasferimento a taglio e quindi il valore di un'area di taglio.


Autore

Sandy supporta il Customer Support nelle questioni tecniche relative al software. Si familiarizza con affidabilità con nuovi argomenti e contribuisce a soluzioni strutturate in modo chiaro.

Bibliografia


;