1827x
004505
13.07.2020

Valeurs inhabituelles des aires de cisaillement dans SHAPE-THIN pour les sections combinées

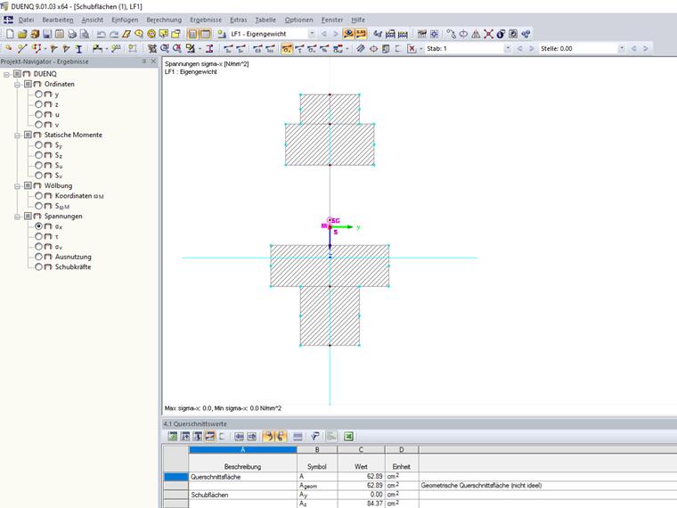
Pour une section combinée dans SHAPE-THIN, l'aire de cisaillementAy est plus grande que l'aire de la section totale A. Pourquoi ?


Réponse:

Les valeurs inhabituelles, c'est-à-dire supérieures à A, des aires de cisaillement peuvent survenir pour les sections paramétriques à parois minces ayant une géométrie atypique, par exemple, et peuvent ne pas être idéalement à parois minces.

Les aires de cisaillement sont calculées selon la théorie des sections à parois minces dans SHAPE-THIN. Par conséquent, la section définie doit avoir des dimensions raisonnables en ce qui concerne les rapports largeur-épaisseur. L'épaisseur t* de l'élément nul de connexion peut être utilisée pour influencer le transfert de cisaillement et donc la valeur d'une aire de cisaillement.


Auteur

Sandy apporte son soutien au Customer Support pour les questions techniques liées au logiciel. Elle s’implique de manière fiable dans de nouveaux sujets et contribue à des solutions clairement structurées.

Références


;