1827x
004505
2020-07-13

Nietypowe wartości powierzchni ścinania w SHAPE-THIN dla złożonych przekrojów

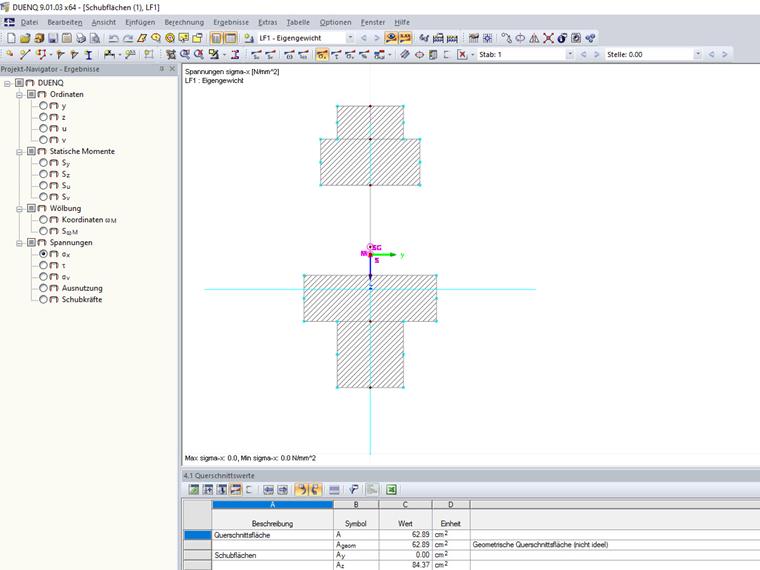
W przypadku przekroju złożonego w SHAPE-THIN powierzchnia ścinania Ay jest większa niż całkowite pole przekroju A. Wie kann das sein?


Odpowiedź:

Na przykład w przypadku parametrycznych przekrojów cienkościennych, które mają nietypową geometrię i mogą nie być idealnie cienkościennymi, mogą wystąpić dziwne wartości pól ścinania - tj. większe niż A -.

Die Schubflächen werden nach der Theorie dünnwandiger Querschnitte in DUENQ berechnet. Daher sollte der definierte Querschnitt vernünftige Abmessungen im Hinblick auf die Breiten-Dickenverhältnisse aufweisen. Mit der Dicke t* des verbindenden Nullelements kann die Schubübertragung und damit der Wert der Schubfläche beeinflusst werden.


Autor

Sandy wspiera dział Obsługi Klienta w kwestiach technicznych związanych z oprogramowaniem. Niezawodnie wdraża się w nowe zagadnienia i przyczynia się do tworzenia jasno uporządkowanych rozwiązań.

Odniesienia


;