1827x
004505
13. Juli 2020

Ungewöhnliche Schubflächenwerte in DUENQ bei zusammengesetzten Querschnitten

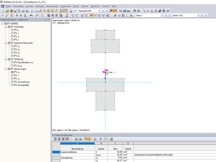
Bei einem zusammengesetzten Querschnitt in DUENQ ist die Schubfläche Ay größer als die gesamte Querschnittsfläche A. Wie kann das sein?


Antwort:

Seltsame Werte der Schubflächen, also größer als A, können bspw. bei parametrischen dünnwandigen Profilen, die eine atypische Geometrie haben und ggf. nicht ideal dünnwandig sind, auftreten.

Die Schubflächen werden nach der Theorie dünnwandiger Querschnitte in DUENQ berechnet. Daher sollte der definierte Querschnitt vernünftige Abmessungen im Hinblick auf die Breiten-Dickenverhältnisse aufweisen. Mit der Dicke t* des verbindenden Nullelements kann die Schubübertragung und damit der Wert der Schubfläche beeinflusst werden.


Autor

Sandy unterstützt im Customer Support bei technischen Anliegen rund um die Software. Sie arbeitet sich zuverlässig in neue Themen ein und trägt zu klar strukturierten Lösungen bei.

Referenzen


;