1778x
004507
2020-07-13

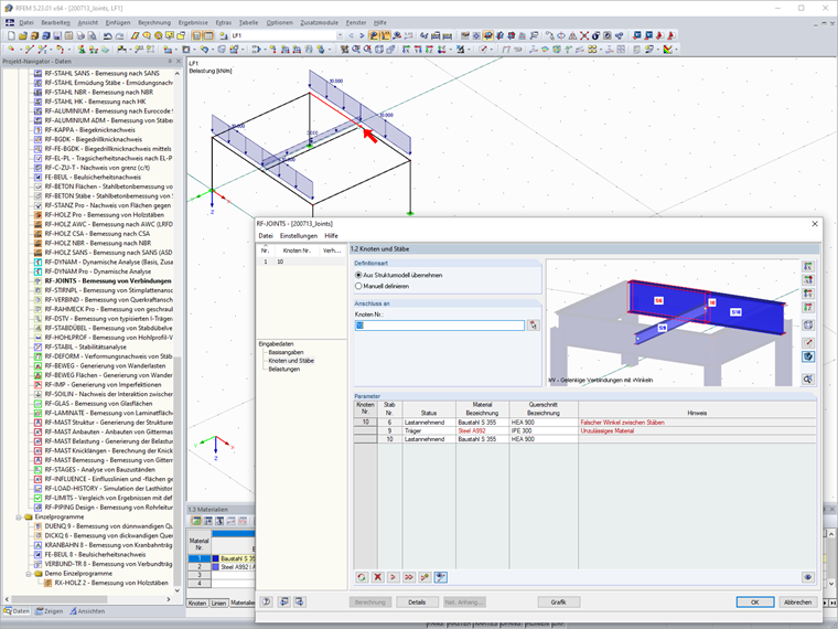
Сообщение об ошибке «Неправильная геометрия» и «Недопустимый материал» в модуле RF-/JOINTS Steel - DSTV

В модуле RF‑/JOINTS Steel - DSTV отображаются примечания «Неправильная геометрия» и «Недопустимый материал». Какие записи мне нужно исправить?


Ответ:

Соединения в модуле RF‑/JOINTS Steel - DSTV представляют собой типовые стальные соединения для передачи или загружения моментами и поперечными силами.

В случае появления примечания «Неправильная геометрия», проверьте, соответствует ли геометрия соединения требованиям типовых соединений. Причиной тому могут быть также несоответствия, возникшие при вводе модели. Например, небольшое отклонение в координатах оси Y могут легко привести к неправильной геометрии модели.

При появлении сообщения «Недопустимый материал» затем проверьте, пригоден ли данный материал для использования в типовых соединениях. Для сечений и металлических листов, например, рекомендуется выбрать для типовых соединений материал S 235 или S 355.


Автор

Штефан оказывает поддержку в Customer Support по техническим вопросам. Даже при более сложных темах он действует структурированно и обеспечивает понятные результаты.

Скачивания


;