1778x
004507
13. Juli 2020

Fehlermeldung "Falscher Winkel zwischen den Stäben" und "Unzulässiges Material" in RF-/JOINTS Stahl - DSTV

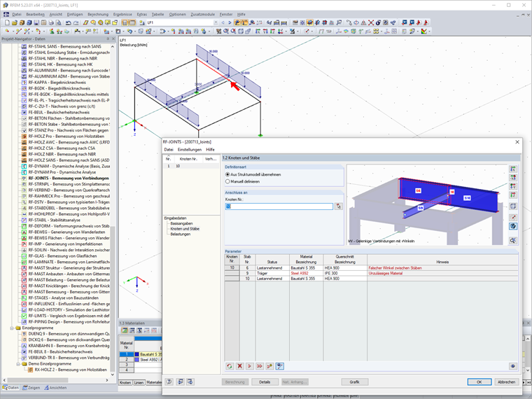
Ich erhalte in RF-/JOINTS Stahl - DSTV den Hinweis "Falscher Winkel zwischen den Stäben" und "Unzulässiges Material". Welche Eingaben muss ich anpassen?


Antwort:

Bei den Anschlüssen im Modul RF-/JOINTS Stahl - DSTV handelt es sich um typische Stahlbauverbindungen zur Übertragung bzw. Einleitung von Momenten und Querkräften.

Beim Hinweis "Falscher Winkel zwischen den Stäben" ist zu überprüfen, ob die Anschlussgeometrie den Voraussetzungen der typisierten Anschlüsse entspricht. Auch Unstimmigkeiten in der Modelleingabe können hier ein Grund sein. In dem Beispiel führt eine kleine Abweichung bei den Koordinaten der Y-Achse zu einer falschen Modellgeometrie.

Beim Hinweis "Unzulässiges Material" ist zu überprüfen, ob das Material für den typisierten Anschluss vorgesehen ist. Für Profile und Bleche kann bei diesen Anschlüssen das Material S 235 oder S 355 ausgewählt werden.


Autor

Stefan unterstützt im Customer Support bei technischen Fragestellungen. Auch bei komplexeren Themen geht er strukturiert vor und sorgt für verständliche Ergebnisse.

Downloads


;