1778x
004507
2020-07-13

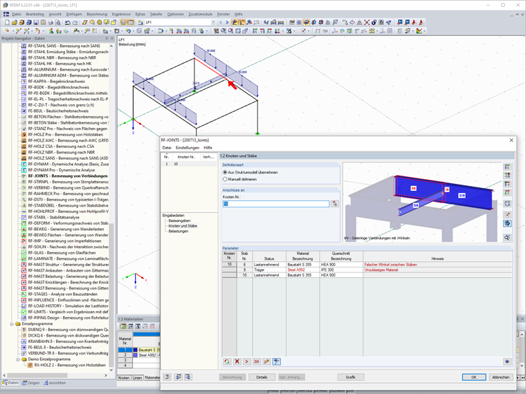
Error Message "Wrong Geometry" and "Invalid Material" in RF‑/JOINTS Steel – DSTV

In RF‑/JOINTS Steel – DSTV, I get the notes "Wrong geometry" and "Invalid material". Which entries do I have to adjust?


Answer:

The connections in the RF‑/JOINTS Steel – DSTV module are typical steel connections for the transmission or introduction of moments and shear forces.

If the "Wrong geometry" note appears, check whether the connection geometry meets the requirements of the typified connections. This can also be caused by inconsistencies in the model input. In the example, a small deviation in the coordinates of the Y‑axis leads to incorrect model geometry.

If the message "Invalid material" appears, check whether the material is provided for the typified connection. For cross-sections and metal sheets, you can select the material S 235 or S 355 for these connections.


Author

Stefan provides support in Customer Support for technical inquiries. Even when dealing with more complex issues, he takes a structured approach and ensures that the results are easy to understand.

Downloads


;