1778x
004507
13-07-2020

Mensaje de error "Geometría incorrecta" y "Material no válido" en RF-/JOINTS Steel - DSTV

En RF-/JOINTS Steel – DSTV, obtengo las notas "Geometría incorrecta" y "Material no válido". Welche Eingaben muss ich anpassen?


Respuesta:

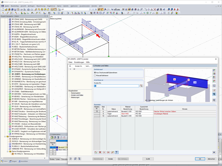
Las conexiones en el módulo RF-/JOINTS Steel - DSTV son conexiones de acero típicas para la transmisión o introducción de momentos y esfuerzos cortantes.

Beim Hinweis "Falscher Winkel zwischen den Stäben" ist zu überprüfen, ob die Anschlussgeometrie den Voraussetzungen der typisierten Anschlüsse entspricht. Auch Unstimmigkeiten in der Modelleingabe können hier ein Grund sein. In dem Beispiel führt eine kleine Abweichung bei den Koordinaten der Y-Achse zu einer falschen Modellgeometrie.

Beim Hinweis "Unzulässiges Material" ist zu überprüfen, ob das Material für den typisierten Anschluss vorgesehen ist. Für Profile und Bleche kann bei diesen Anschlüssen das Material S 235 oder S 355 ausgewählt werden.


Autor

Stefan apoya en el Customer Support con cuestiones técnicas. Incluso en temas más complejos, procede de forma estructurada y garantiza resultados comprensibles.

Descargas


;