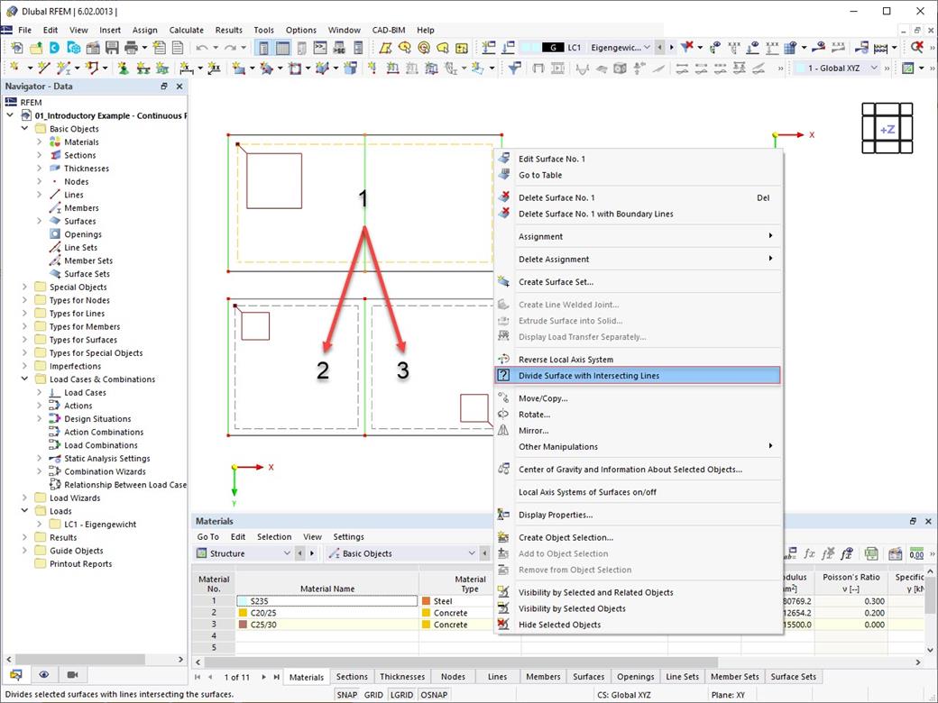
Плоские поверхности можно разделить пересекающимися линиям. Разделение можно выполнить вручную следующим образом:
- Выберите поверхность с пересекающимися линиями
- Используйте функцию «Разделить поверхность пересекающимися линиями»
зарегистрируйтесь во Длупал Экстранет, чтобы максимально использовать программное обеспечение и иметь эксклюзивный доступ к вашим личным данным.
зарегистрируйтесь во Длупал Экстранет, чтобы максимально использовать программное обеспечение и иметь эксклюзивный доступ к вашим личным данным.
зарегистрируйтесь во Длупал Экстранет, чтобы максимально использовать программное обеспечение и иметь эксклюзивный доступ к вашим личным данным.
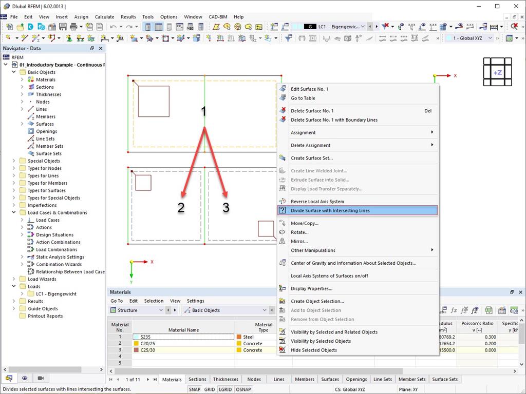
Плоские поверхности можно разделить пересекающимися линиям. Разделение можно выполнить вручную следующим образом: