1712x
002441
30-05-2022

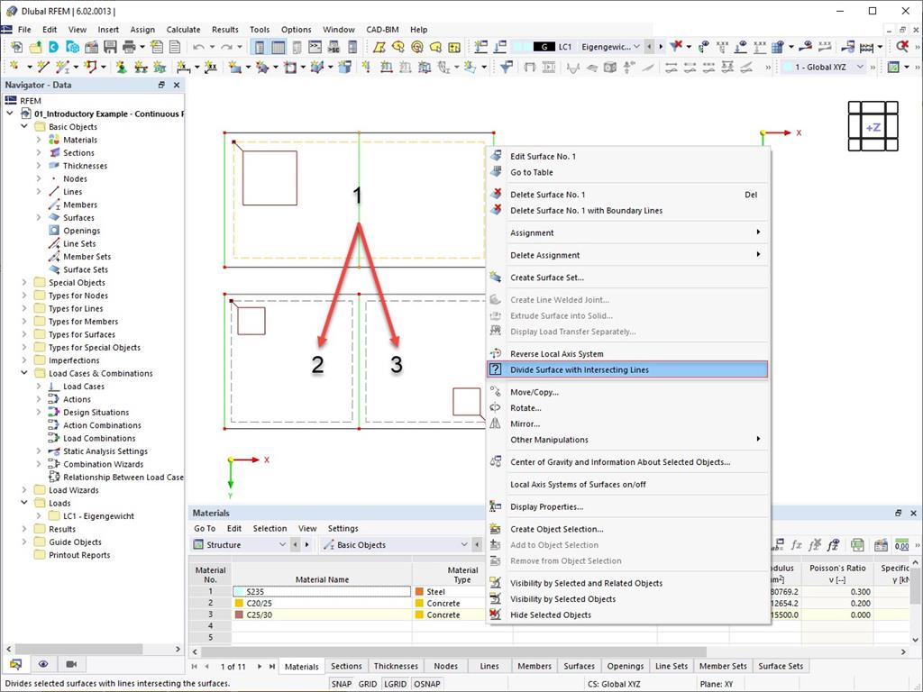
División de superficies con líneas de intersección

Las superficies planas se pueden dividir en sus líneas de intersección. La división se puede hacer manualmente de la siguiente manera:

  • Seleccione una superficie con las líneas de intersección
  • Utilice la función "Dividir superficie con líneas de intersección"


;