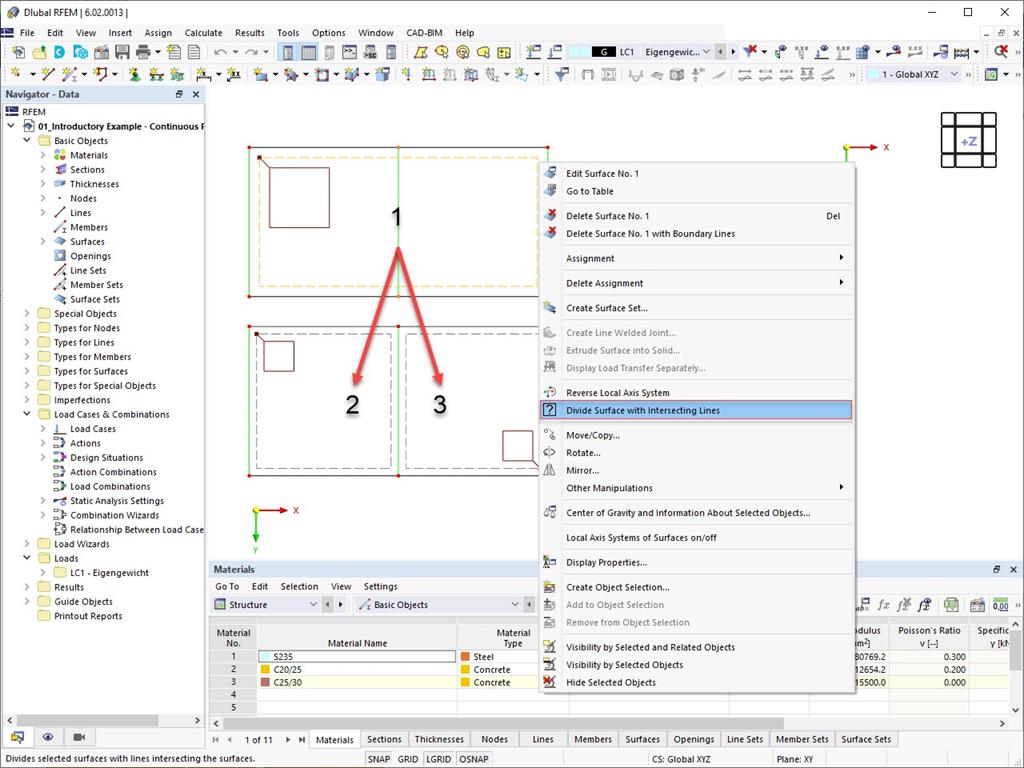
As superfícies planas podem ser divididas nas linhas de intersecção. A divisão pode ser realizada manualmente da seguinte forma:
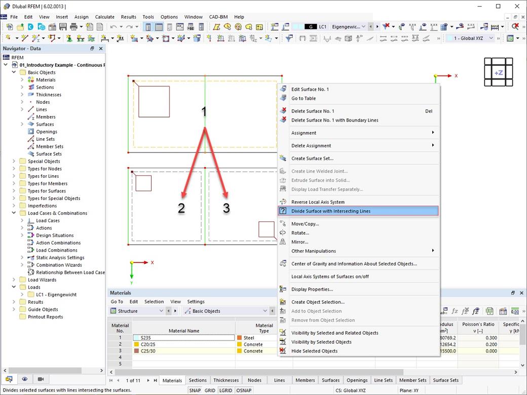
- Selecionar uma superfície com linhas de intersecção
- Utilizar a função "Dividir superfície com linhas de intersecção"
Registe-se no extranet da Dlubal para aproveitar ao máximo o software e ter acesso exclusivo aos seus dados pessoais.
Registe-se no extranet da Dlubal para aproveitar ao máximo o software e ter acesso exclusivo aos seus dados pessoais.
Registe-se no extranet da Dlubal para aproveitar ao máximo o software e ter acesso exclusivo aos seus dados pessoais.
As superfícies planas podem ser divididas nas linhas de intersecção. A divisão pode ser realizada manualmente da seguinte forma: