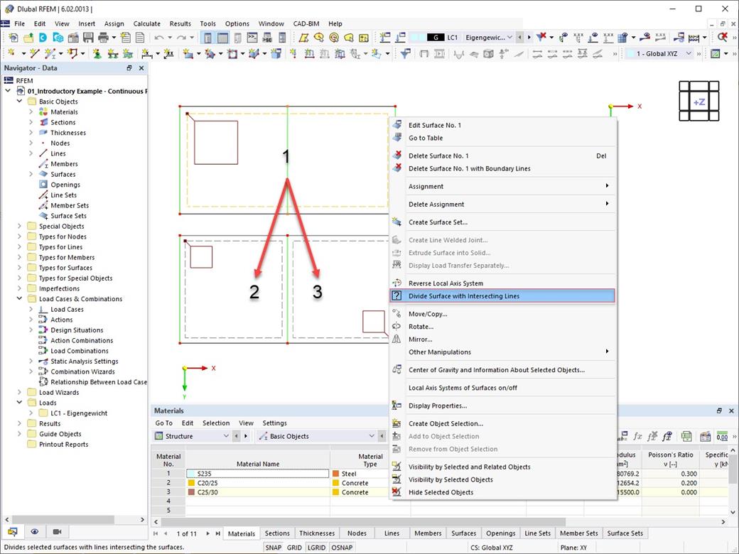
Planar surfaces can be divided by intersecting lines. The division can be done manually as follows:
- Select a surface with intersecting lines
- Use the "Divide Surface with Intersecting Lines" function
Sign up for the Dlubal Extranet to get most of the software and have exclusive access to your personal data.
Sign up for the Dlubal Extranet to get most of the software and have exclusive access to your personal data.
Sign up for the Dlubal Extranet to get most of the software and have exclusive access to your personal data.
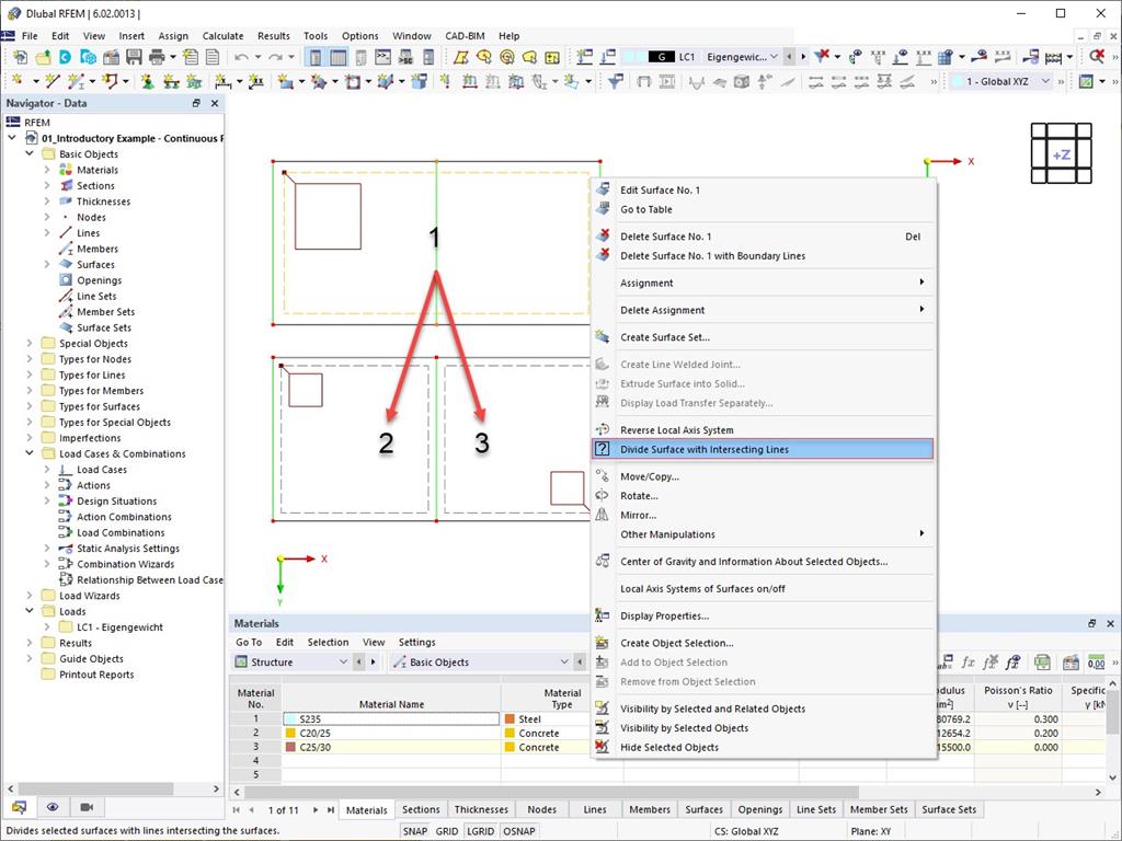
Planar surfaces can be divided by intersecting lines. The division can be done manually as follows: