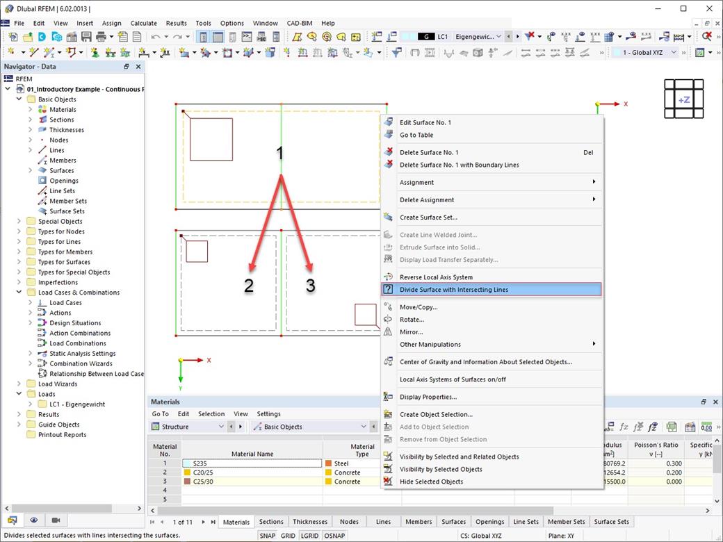
Rovinné plochy lze dělit liniemi, které v nich leží a přetínají je. Rozdělení lze provést ručně následujícím způsobem:
- Vyberte plochu s liniemi přetínajícími plochu
- Použijte funkci 'Rozdělit plochu liniemi přetínajícími plochu'
Zaregistrujte se do extranetu Dlubal, abyste získali většinu softwaru a měli exkluzivní přístup k vašim osobním údajům.
Zaregistrujte se do extranetu Dlubal, abyste získali většinu softwaru a měli exkluzivní přístup k vašim osobním údajům.
Zaregistrujte se do extranetu Dlubal, abyste získali většinu softwaru a měli exkluzivní přístup k vašim osobním údajům.
Rovinné plochy lze dělit liniemi, které v nich leží a přetínají je. Rozdělení lze provést ručně následujícím způsobem: