1712x
002441
2022-05-30

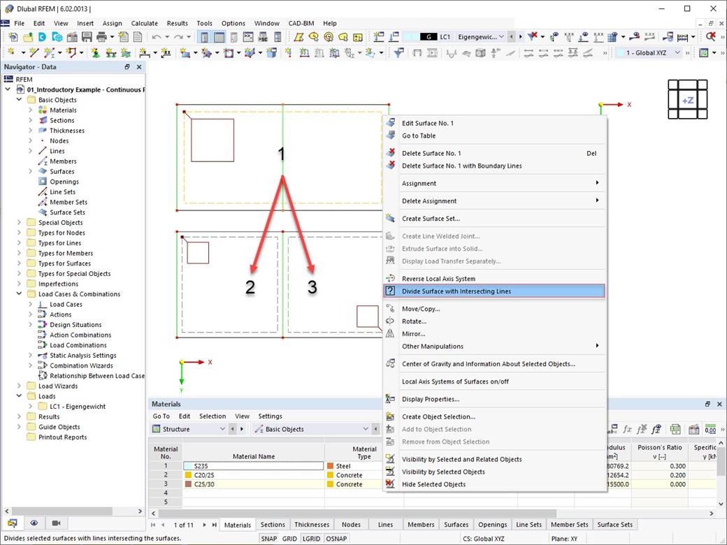
Divisione di superfici con linee intersecanti

Le superfici piane possono essere divise in corrispondenza delle linee intersecanti. La divisione può essere eseguita manualmente come segue:

  • Seleziona una superficie con le linee di intersezione
  • Utilizza la funzione "Dividi la superficie con linee intersecanti".


;