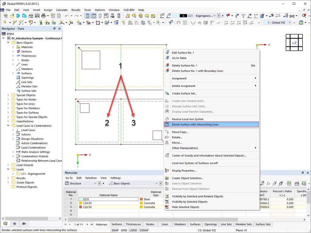
Płaskie powierzchnie można podzielić za pomocą przecinających je linii. Podziału można dokonać ręcznie w następujący sposób:
- Wybierz powierzchnię z przecinającymi ją liniami
- Użyj funkcji "Podziel powierzchnię za pomocą przecinających ją linii"
Zarejestruj się w Extranecie Dlubal, aby maksymalnie wykorzystać możliwości oprogramowania oraz mieć ekskluzywny dostęp do swoich danych osobowych.
Zarejestruj się w Extranecie Dlubal, aby maksymalnie wykorzystać możliwości oprogramowania oraz mieć ekskluzywny dostęp do swoich danych osobowych.
Zarejestruj się w Extranecie Dlubal, aby maksymalnie wykorzystać możliwości oprogramowania oraz mieć ekskluzywny dostęp do swoich danych osobowych.
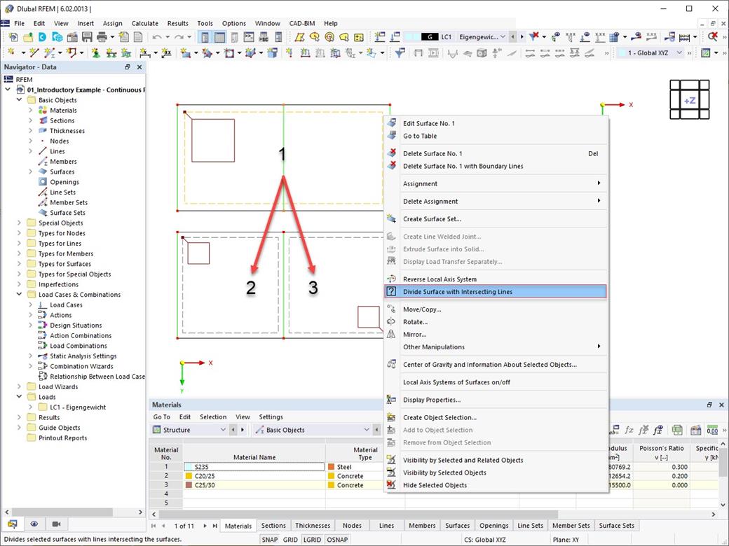
Płaskie powierzchnie można podzielić za pomocą przecinających je linii. Podziału można dokonać ręcznie w następujący sposób: