8475x
001626
2020-07-22

Стальные рамы с учетом жесткости соединения

В данной технической статье будет на примере двухэтажной, двухпролетной стальной рамы проанализировано влияние величины жесткости соединения на определение значений внутренних сил и на общий расчет соединений.

Модель данной статьи основана на примере 5.5.3 из технической литературы {%><#Refer [1]]]. В нем поясняется влияние жесткости соединения на определение значений внутренних сил, а также на расчет соединений на примере двухэтажной, двухпролетной стальной рамы.

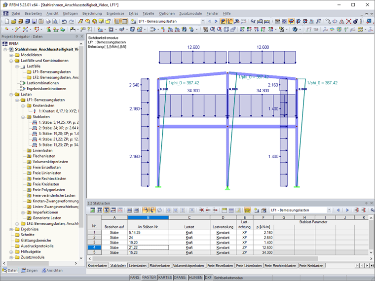
Нагрузки

Нагрузки, возникающие при нагружаемой ширине четыре метра, применены согласно {%><#Refer [1]]]. При этом не учитывается только смещение стержневых шарниров на 0,1 м от оси колонн. Глобальный исходный перекос рассчитывается по уравнению 5.5 в {%>


Где:


до

Геометрия соединений и характеристики моментов и вращения

Соединения поперечных балок в промежуточном перекрытии, а также в кровле, моделируются с помощью удлиненных лобовых плит без элементов жесткости в колоннах. Данная конструкция в этом случае дает экономические преимущества.

Согласно [1], для деформируемых соединений, как правило, необходимо учитывать влияние моментно-вращательных характеристик соединений на распределение внутренних сил в конструкции. С помощью метода компонент, указанного в норме EN 1993-1-8, можно рассчитать упругую начальную жесткость Sj,ini соединений. Для этого применяется дополнительный модуль RF-/JOINTS Steel Rigid.


Применение жесткости пружины при кручении в модели рассматривается упрощенно по норме EN 1993-1-8, раздел 5.1.2 (4), для быстрой настройки системы в случае внесения изменений посредством параметризации.

IPE 240: Sj,модель = Sj,ini/η = 16 304/2 = 8 152 кНм/рад
IPE 300: Sj,модель = Sj,ini/η = 26 372/2 = 13 186 кНм/рад


Внутренние силы и расчет соединений

Результатом определения значений первой собственной формы в плоскости рамы с помощью дополнительных модулей RSBUCK или RF-STABILITY является коэффициент критической нагрузки acr, равный 12,6. Это позволяет рассчитать внутренние силы по уравнению 5.1 в {%://#Refer [2]]] по теории первого порядка.

Расчет нагружения с упруго смоделированными стержневыми шарнирами приводит к следующим результатам у внутренних сил.

На основе полученных значений внутренних сил соединение рассчитывается по норме EN 1993-1-8 в дополнительном модуле RF-/JOINTS Steel Rigid.

Расчет нагружения с жесткими стержневыми шарнирами приводит к следующим результатам у внутренних сил.

С такими высокими значениями внутренних сил в соединении между балкой и колонной, мы больше не можем рассчитать соединения.

Заключение

Учет жесткости соединений в расчете конструкции позволяет применить неусиленное выполнение соединений, а также более однородное использование балок в данной двухэтажной, двухпролетной раме стального каркаса.


Ссылки
Ссылки
Скачивания


;