8475x
001626
22.07.2020

Portique métallique avec considération de la rigidité des assemblages

Cet article technique analyse les effets de la rigidité des assemblages sur la distribution des efforts internes dans une structure et sur le calcul de ces assemblages avec un exemple de portique en acier à deux niveaux et à deux pans.

Le modèle de cet article technique est basé sur l’exemple 5.5.3 de la littérature spécialisée [1]. Cet article technique analyse les effets de la rigidité d'un assemblage sur la détermination des efforts internes et sur le calcul de cet assemblages avec un exemple de portique en acier à deux niveaux et à deux nefs.

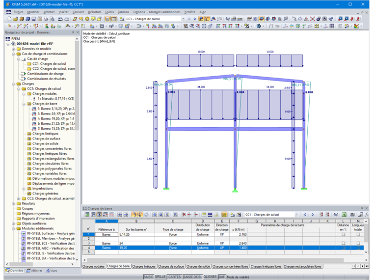
Hypothèse de charge

Les charges résultent d'une largeur de quatre mètres sont appliquées selon [1]. Seul le déplacement des articulations d'extrémité de barre de 0,1 m depuis l'axe des poteaux est négligeable. Les défauts initiaux globaux d’aplomb sont calculés selon l’équation 5.5 de [2] :


où :


jusqu'à

Géométrie des assemblages et caractéristiques de la capacité de rotation

Les assemblages des poutres du plafond intermédiaire et de la toiture sont réalisés à l'aide de platines d'about prolongées sans raidisseurs dans les poteaux. Ce système présente des avantages économiques dans le cas présent.

Selon [1], l'effet de la capacité de rotation des assemblages sur la distribution des efforts internes dans une structure doit généralement être pris en compte pour les assemblages déformables. Avec la méthode des composants indiquée dans l'EN 1993-1-8, il est possible de calculer la rigidité en rotation initiale Sj, ini pour les assemblages. C'est le module additionnel RF-/JOINTS Steel Rigid qui est utilisé pour cette opération.


L'application de la rigidité de ressort dans le modèle est simplifiée selon la Section 5.1.2 (4) de l'EN 1993-1-8 et est définie pour un ajustement rapide dans le système en cas de modification à l'aide du paramétrage.

IPE 240 : Sj,Modèle = Sj,ini / η = 16,304 / 2 = 8,152 kNm/rad
IPE 300 : Sj,Modèle = Sj,ini / η = 26,372 / 2 = 13,186 kNm/rad


Efforts internes et vérification des assemblages

La détermination du premier mode propre dans le plan de l'ossature avec les modules additionnels RSBUCK ou RF-STABILITY permet d'obtenir un facteur de charge critique acr de 12,6. Vous pouvez ainsi calculer les efforts internes selon l’équation 5.1 de [2] à l’aide d’une analyse du premier ordre.

Le calcul du cas de charge avec des articulations de barre modélisées de manière rigide entraîne les efforts internes visibles sur la Figure 07.

L'assemblage est calculé en fonction de ces efforts internes selon l'EN 1993-1-8 dans le module additionnel RF-/JOINTS Steel Rigid.

Le calcul du cas de charge avec les articulations de barre rigides entraîne les efforts internes visibles sur la Figure 09.

Il n'est plus possible de calculer les assemblages en raison des efforts internes plus importants au niveau des connexions entre la poutre et le poteau.

Conclusion

La considération de la rigidité des assemblages dans le calcul d'une structure permet de rigidifier les connexions et d'utiliser les poutres de manière plus homogène dans cet exemple de structure à ossature métallique.


Liens
Références
Téléchargements


;