8475x
001626
22. Juli 2020

Stahlrahmen mit Berücksichtigung der Anschlusssteifigkeit

Dieser Fachbeitrag untersucht die Auswirkungen der Anschlusssteifigkeit auf die Schnittgrößenermittlung sowie die Bemessung der Anschlüsse am Beispiel eines zweistöckigen, zweischiffigen Stahlrahmens.

Das Modell dieses Fachbeitrages basiert auf dem Beispiel 5.5.3 in der Fachliteratur [1]. Dies erläutert die Auswirkungen der Anschlusssteifigkeit auf die Schnittgrößenermittlung sowie die Bemessung der Anschlüsse am Beispiel eines zweistöckigen, zweischiffigen Stahlrahmens.

Belastung

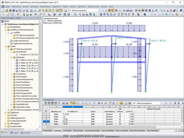
Die Lasten, resultierend aus einer Einzugsbreite von vier Metern, sind analog [1] angesetzt. Es wird lediglich auf die Verschiebung der Stabendgelenke um 0,1 m aus der Achse der Stützen verzichtet. Die globalen Anfangsschiefstellungen berechnen sich nach Gleichung 5.5 in [2] zu:


mit


zu

Geometrie der Anschlüsse und Momenten-Rotations-Charakteristika

Die Anschlüsse der Riegel in der Zwischendecke sowie im Dach werden mit überstehenden Stirnplatten ohne Steifen in den Stützen ausgebildet. Diese Ausführung führt im vorliegenden Fall zu wirtschaftlichen Vorteilen.

Nach [1] ist die Auswirkung der Momenten-Rotations-Charakteristika der Anschlüsse auf die Verteilung der Schnittgrößen in einem Tragwerk bei verformbaren Anschlüssen in der Regel zu berücksichtigen. Mit der in der EN 1993-1-8 geregelten Komponentenmethode kann die elastische Anfangssteifigkeit Sj,ini für die Anschlüsse berechnet werden. Dies erfolgt mit dem Zusatzmodul RF-/JOINTS Stahl Biegesteif.


Der Ansatz der Drehfedersteifigkeit im Modell erfolgt vereinfacht nach EN 1993-1-8 Abs. 5.1.2 (4) und wird zur schnellen Anpassung im System bei Änderungen mit Hilfe der Parametrisierung definiert.

IPE 240: Sj,Modell = Sj,ini / η = 16.304 / 2 = 8.152 kNm/rad
IPE 300: Sj,Modell = Sj,ini / η = 26.372 / 2 = 13.186 kNm/rad


Schnittgrößen und Bemessung der Anschlüsse

Die Ermittlung der ersten Eigenform in Rahmenebene mit den Zusatzmodulen RSKNICK oder RF-STABIL ergibt einen Verzweigungslastfaktor acr von 12,6. Damit ist die Berechnung der Schnittgrößen gemäß Gleichung 5.1 in [2] nach Theorie I. Ordnung möglich.

Die Berechnung des Lastfalls mit nachgiebig modellierten Stabendgelenken ergibt folgende Schnittgrößen.

Basierend auf diesen Schnittgrößen erfolgt die Bemessung der Verbindung gemäß EN 1993-1-8 in dem Zusatzmodul RF-/JOINTS Stahl Biegesteif.

Die Berechnung des Lastfalls mit biegesteifen Stabendgelenken ergibt folgende Schnittgrößen.

Mit diesen höheren Schnittgrößen an den Verbindungen zwischen Riegel und Stütze ist die Bemessung der Anschlüsse nicht mehr möglich.

Fazit

Die Berücksichtigung der Anschlusssteifigkeit in der Tragwerksberechnung ermöglicht die steifenlose Ausbildung der Verbindungen sowie eine homogenere Ausnutzung der Riegel bei dem vorliegenden zweistöckigen, zweischiffigen Stahlrahmen in Stahlskelettbauweise.


Links
Referenzen
Downloads


;