8475x
001626
2020-07-22

Struttura di acciaio considerando la rigidezza del collegamento

Questo articolo tecnico analizza gli effetti della rigidezza degli collegamenti sulla determinazione delle forze interne e la progettazione delle connessioni usando l'esempio di un telaio in acciaio a due piani, a due falde.

Il modello di questo articolo tecnico si basa sull'Esempio 5.5.3 nella letteratura tecnica [1]. Spiega gli effetti della rigidezza del collegamento sulla determinazione delle forze interne, nonché sulla verifica dei collegamenti utilizzando l'esempio di un telaio in acciaio a due piani a doppia campata.

CC/ CO

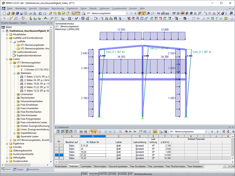
I carichi risultanti da una larghezza di alimentazione di quattro metri vengono applicati secondo [1]. Viene omesso solo lo spostamento dei vincoli interni dell'asta di 0,1 m dall'asse delle colonne. Le inclinazioni iniziali globali sono calcolate secondo l'equazione 5.5 in [2]:


dove


A

Geometria dei collegamenti e caratteristiche del momento-rotazione

I collegamenti delle travi nel solaio intermedio e nella copertura sono formati con piastre terminali estese senza irrigidimenti nelle colonne. Questo progetto porta a vantaggi economici nel caso attuale.

Secondo [1], l'effetto delle caratteristiche momento-rotazione dei collegamenti sulla distribuzione delle forze interne in una struttura per collegamenti deformabili di solito deve essere preso in considerazione. Con il metodo dei componenti specificato nella EN 1993-1-8, è possibile calcolare la rigidezza elastica iniziale Sj,ini per i collegamenti. Qui viene utilizzato il modulo aggiuntivo RF-/JOINTS Steel Rigid.


L'applicazione della rigidezza torsionale della molla nel modello è semplificata secondo EN 1993-1-8 Sezione 5.1.2 (4) ed è definita per una rapida regolazione nel sistema in caso di modifiche mediante parametrizzazione.

IPE 240: Sj,Modello = Sj,ini/η = 16,304/2 = 8,152 kNm/rad
IPE 300: Sj,Modello = Sj,ini/η = 26,372/2 = 13,186 kNm/rad


Forze interne e verifica dei collegamenti

La determinazione della prima forma modale nel piano del telaio con i moduli aggiuntivi RSBUCK o RF-STABILITY risulta in un coefficiente di carico critico acr di 12,6. Ciò consente di calcolare le forze interne secondo l'equazione 5.1 in [2] secondo l'analisi statica lineare.

Il calcolo del caso di carico con cerniere dell'asta modellate rigidamente risulta nelle seguenti forze interne.

Sulla base di queste forze interne, il collegamento è progettato secondo EN 1993-1-8 nel modulo aggiuntivo RF-/JOINTS Steel Rigid.

Il calcolo del caso di carico con cerniere per aste rigide risulta nelle seguenti forze interne.

Con queste forze interne più elevate sui collegamenti tra la trave e la colonna, non è più possibile progettare i collegamenti.

Conclusione

La considerazione della rigidezza del collegamento nell'analisi strutturale consente la verifica non armata dei collegamenti e un utilizzo più omogeneo delle travi nell'attuale telaio in acciaio a due piani a doppia campata nella costruzione dello scheletro in acciaio.


Link
Bibliografia
Download


;