O modelo deste artigo técnico é baseado no exemplo 5.5.3 na literatura técnica {%>#Refer [1]]]. São explicados os efeitos da rigidez da ligação na determinação dos esforços internos, bem como o dimensionamento das ligações utilizando o exemplo de uma estrutura de aço de dois andares com vãos duplos.
Carga
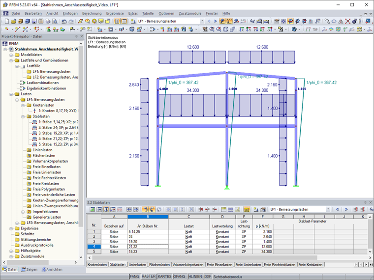
As cargas resultantes de uma largura de alimentação de quatro metros são aplicadas de acordo com {%>#Refer [1]]]. Apenas é omitido um deslocamento das articulações de barra de 0,1 m em relação ao eixo dos pilares. As inclinações iniciais globais são calculadas de acordo com a Equação 5.5 em {%>#Refer [2]]]:
Onde
Até
Geometria de ligações e características de momento-rotação
As ligações das vigas na laje intermédia assim como na cobertura são formadas com chapas de extremidade aumentadas sem reforços nos pilares. Este dimensionamento apresenta vantagens económicas no presente caso.
De acordo com {%>#Refer [1]]], o efeito do momento-rotação característico das ligações na distribuição das forças internas numa estrutura para ligações deformáveis geralmente tem de ser considerada. Com o método dos componentes especificado na EN 1993-1-8 é possível calcular a rigidez elástica inicial Sj,ini para as ligações. O módulo adicional RF-/JOINTS Steel Rigid é utilizado aqui.
A aplicação da rigidez da mola de torção no modelo é simplificada de acordo com a EN 1993-1-8 secção 5.1.2 (4) e é definida para um ajustamento rápido no sistema no caso de alterações através da parametrização.
IPE 240: Sj,Modelo = Sj,ini/η = 16.304/2 = 8.152 kNm/rad
IPE 300: Sj,Modelo = Sj,ini/η = 26.372/2 = 13.186 kNm/rad
Esforços internos e dimensionamento de ligações
A determinação da primeira forma própria no plano do pórtico com os módulos adicionais RSBUCK ou RF-STABILITY resulta num fator de carga crítica acr de 12,6. Isto permite calcular os esforços internos de acordo com a Equação 5.1 em {%>#Refer [2]]] de acordo com a análise linear estática.
O cálculo do caso de carga com articulações de barra modeladas de forma rígida resulta nas seguintes forças internas.
Com base nestes esforços internos, a ligação é dimensionada de acordo com a norma EN 1993-1-8 no módulo adicional RF-/JOINTS Steel Rigid.
O cálculo do caso de carga com articulações de barra rígidas resulta nas seguintes forças internas.
Com estes esforços internos mais elevados nas ligações entre a viga e o pilar, já não é possível dimensionar as ligações.
Conclusão
A consideração da rigidez da ligação na análise estrutural permite o dimensionamento não reforçado das ligações, bem como uma utilização mais homogénea das vigas na atual estrutura de aço de dois andares em aço com vão duplo.