8475x
001626
2020-07-22

Analiza stalowej ramy uwzględniająca sztywność połączeń

W poniższym artykule, na przykładzie dwukondygnacyjnej stalowej ramy, przeanalizowano wymiarowanie połączeń oraz wpływ sztywności tych połączeń na wartości sił wewnętrznych w elementach konstrukcji.

Model tego artykułu technicznego jest oparty na Przykładzie 5.5.3 w literaturze technicznej [1]. Wyjaśniono wpływ sztywności połączenia na określanie sił wewnętrznych oraz wymiarowanie połączeń na przykładzie dwukondygnacyjnej, dwuprzęsłowej ramy stalowej.

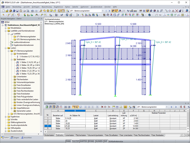
obciążenie konstrukcji

Obciążenia wynikające z szerokości posuwu wynoszącej cztery metry są przykładane zgodnie z [1]. Pominięte zostaje jedynie przemieszczenie przegubów prętowych o 0,1 m od osi słupów. Globalne przechyły początkowe są obliczane według równania 5.5 w [2]:


Gdzie


TO

Geometria połączeń i charakterystyki momentu obrotowego

Połączenia belek w stropie pośrednim oraz w dachu są utworzone za pomocą wydłużonych blach czołowych bez elementów usztywniających w słupach. W obecnym przypadku taka konstrukcja prowadzi do korzyści ekonomicznych.

Zgodnie z [1] zazwyczaj należy uwzględnić wpływ właściwości momentu obrotowego połączeń na rozkład sił wewnętrznych w konstrukcji w przypadku połączeń odkształcalnych. Za pomocą metody składowych określonej w normie EN 1993-1-8 można obliczyć początkową sztywność sprężystą Sj,ini dla połączeń. Wykorzystano tu moduł dodatkowy RF-/JOINTS Steel Rigid.


Zastosowanie sztywności skrętnej w modelu zostało uproszczone zgodnie z normą EN 1993-1-8, sekcja 5.1.2 (4) i zdefiniowano w celu szybkiego dostosowania w układzie w przypadku zmian poprzez parametryzację.

IPE 240: Sj,Model = Sj,ini/η = 16.304/2 = 8.152 kNm/rad
IPE 300: Sj,Model = Sj,ini/η = 26 372/2 = 13 186 kNm/rad


Siły wewnętrzne i projektowanie połączeń

Określenie pierwszej postaci drgań w płaszczyźnie ramy za pomocą modułu dodatkowego RSBUCK lub RF-STABILITY powoduje, że współczynnik obciążenia krytycznego acr wynosi 12,6. Umożliwia to obliczenie sił wewnętrznych zgodnie z równaniem 5.1 w [2] według liniowej analizy statycznej.

W wyniku obliczeń przypadku obciążenia ze sztywno zamodelowanymi przegubami prętowymi, siły wewnętrzne są następujące.

Na podstawie tych sił wewnętrznych połączenie jest obliczane zgodnie z EN 1993-1-8 w module dodatkowym RF-/JOINTS Steel Rigid.

W wyniku obliczenia przypadku obciążenia z przegubami na końcach pręta sztywnego, siły wewnętrzne są podane poniżej.

Ze względu na większe siły wewnętrzne na połączeniach między belką a słupem nie jest już możliwe obliczanie połączeń.

Uwagi końcowe

Uwzględnienie sztywności połączenia w analizie statyczno-wytrzymałościowej pozwala na projektowanie połączeń niezbrojonych, a także na bardziej jednolite wykorzystanie belek w dwukondygnacyjnej, dwuprzęsłowej stalowej ramie szkieletowej.


Odnośniki
Odniesienia
Pobrane


;