245x
005555
2024-06-21

Расчёт на устойчивость по норме EN 1993-1-1

Можно ли в RSECTION 1 выполнить расчёт на устойчивость по норме EN 1993-1-1?


Ответ:

Расчётные проверки на устойчивость по EN 1993-1-1, 6.3 не включены в RSECTION 1.

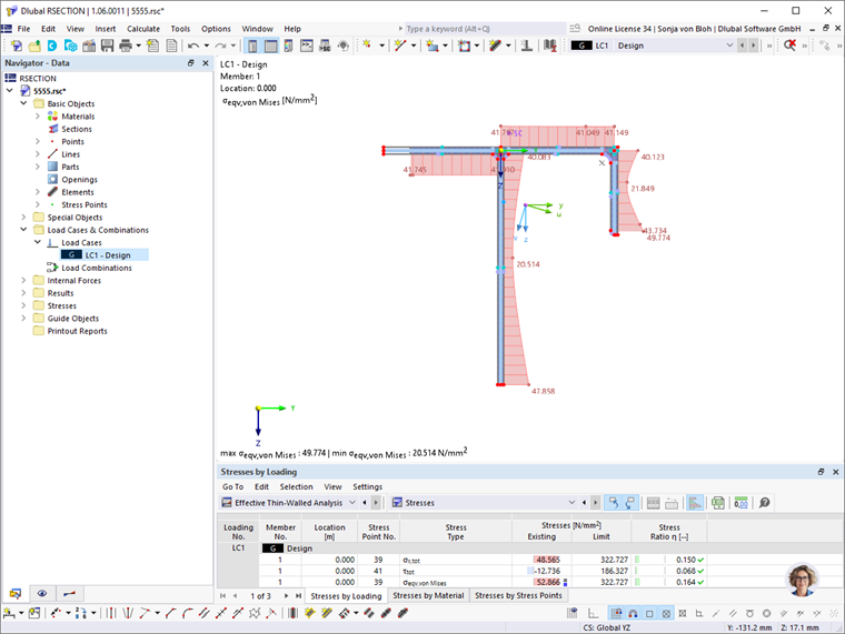
По норме EN 1993-1-1, 5.2.2 (7) a), анализ устойчивости можно выполнить как расчёт сечения, если пространственный нелинейный расчёт выполняется с применением общих и местных несовершенств. Для того, чтобы смоделировать потерю устойчивости плоской формы изгиба, необходимо определить внутренние силы по геометрически нелинейной теории потери устойчивости при кручении с учётом депланации при кручении. Поскольку все действия устойчивости учитывается при вычислении, необходимо только выполнить только расчёт сечения.

В RSECTION 1 можно рассчитать напряжения от нормальной силы, двухосных изгибающих моментов и поперечных сил, первичного и вторичного крутящего момента, а также бимомента депланации для любой формы сечения. Таким образом, в RSECTION 1 можно использовать метод расчёта, описанный в EN 1993-1-1, 5.2.2 (7) a).

Кроме того, аддон Эффективные сечения (расширение для RSECTION 1) позволяет выполнить классификацию по EN 1993-1-1 и рассчитать эффективное сечение по EN 1993-1-5.


Автор

Г-жа фон Бло оказывает техническую поддержку нашим клиентам и отвечает за разработку программы SHAPE‑THIN, а также стальных и алюминиевых конструкций.



;