245x
005555
2024-06-21

稳定性分析按照规范 EN 1993-1-1

在 RSECTION 1 中是否可以根据 EN 1993-1-1 进行稳定性分析?


回复:

RSECTION 1 不包含根据规范 EN 1993-1-1 中 6.3 进行的稳定性验算。

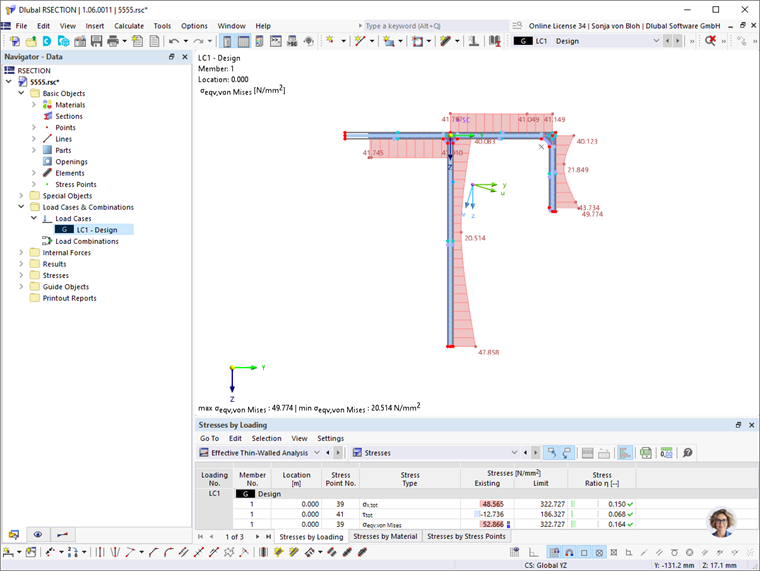
Nach EN 1993-1-1, 5.2.2 (7) a) darf der Stabilitätsnachweis als Querschnittsnachweis geführt werden, wenn eine räumliche Berechnung nach Theorie II. Ordnung mit einem Ansatz von globalen und lokalen Imperfektionen durchgeführt wird. Um das Biegedrillknicken mit abzubilden, bedarf es einer Schnittgrößenermittlung nach geometrisch nichtlinearer Biegetorsionstheorie unter Berücksichtigung der Wölbkrafttorsion. Es sind nur Querschnittsnachweise erforderlich, da durch die Berechnung alle Stabilitätseffekte abgedeckt sind.

In RSECTION 1 können die Spannungen aus Normalkraft, zweiachsige Biegemomente und Querkräfte, primärem und sekundärem Torsionsmoment sowie Wölbbimoment für beliebige Querschnittsformen berechnet werden. Damit ist in RSECTION 1 das in EN 1993-1-1, 5.2.2 (7) a) beschriebene Nachweisverfahren möglich.

Mit dem Add-On Effektive Querschnitte (Erweiterung für RSECTION 1) kann zudem eine Klassifizierung nach EN 1993-1-1 durchgeführt sowie der wirksame Querschnitt nach EN 1993-1-5 berechnet werden.


作者

von Bloh 女士为我们的客户提供技术支持,负责 SHAPE-THIN 软件的开发,以及钢结构和铝合金结构的开发。



;