245x
005555
21.06.2024

Analyse de stabilité selon l’EN 1993-1-1

Est-il possible d’effectuer des analyses de stabilité selon l’EN 1993-1-1 dans RSECTION 1 ?


Réponse:

Les analyses de stabilité selon l’EN 1993-1-1, 6.3, ne sont pas prises en charge par RSECTION 1.

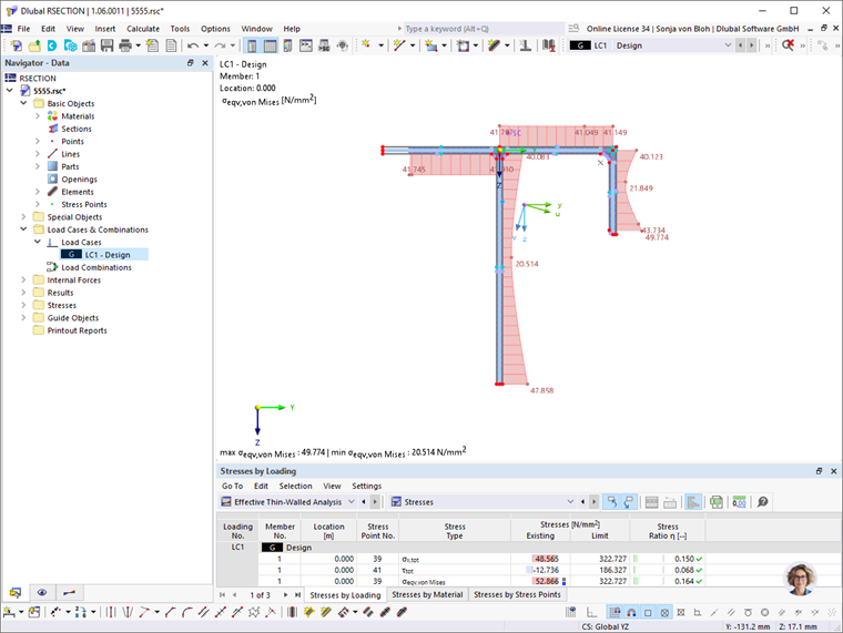
Selon l’EN 1993-1-1, 5.2.2 (7) a), l’analyse de stabilité peut être effectuée comme une vérification de section si un calcul spatial selon l’analyse du second ordre est effectué avec l’application des imperfections globales et locales. Pour représenter le déversement, il est nécessaire de déterminer les efforts internes selon la théorie géométriquement non linéaire du flambement par torsion, en considérant la torsion de gauchissement. Seules les vérifications de section sont requises car tous les effets de stabilité sont couverts par le calcul.

Dans RSECTION 1, les contraintes peuvent être issues de l’effort normal, des moments biaxiaux de flexion et des efforts tranchants, des moments de torsion primaire et secondaire ainsi que du bimoment de gauchissement pour toute forme de section. Par conséquent, la procédures de calcul décrite dans l’EN 1993-1-1, 5.2.2 (7) a) est possible dans RSECTION 1.

Le module complémentaire Section efficace pour RSECTION 1 permet une classification selon l’EN 1993-1-1 et un calcul de la section efficace selon l’EN 1993-1-5.


Auteur

Mme von Bloh fournit une assistance technique à nos utilisateurs et est également responsable du développement du programme SHAPE-THIN et de la construction en acier et en aluminium.



;