246x
005555
2024-06-21

Analiza stateczności zgodnie z EN 1993-1-1

Czy w RSECTION 1 można przeprowadzić analizy stateczności zgodnie z EN 1993-1-1?


Odpowiedź:

Obliczenia stateczności zgodnie z EN 1993-1-1, 6.3 nie są uwzględnione w RSECTION 1.

Zgodnie z EN 1993-1-1, 5.2.2 (7) a), analiza stateczności może być przeprowadzona jako wymiarowanie przekroju, jeżeli obliczenia przestrzenne zgodnie z analizą drugiego rzędu są przeprowadzane z zastosowaniem globalnych i lokalnych imperfekcji. W celu odwzorowania zwichrzenia należy zdefiniować siły wewnętrzne zgodnie z geometrycznie nieliniową teorią wyboczenia skrętnego, z uwzględnieniem skręcania skrępowanego. Ponieważ obliczenia uwzględniają wszystkie wpływy na stateczność, należy tylko przeprowadzić obliczenia dla przekrojów.

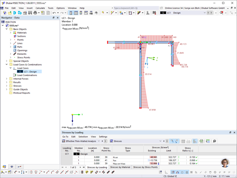
W RSECTION 1 można obliczać naprężenia wywołane siłą osiową, dwukierunkowymi momentami zginającymi i siłami tnącymi, pierwotnym i drugorzędnym momentem skręcającym, a także bimomentem deplanacyjnym dla dowolnego kształtu przekroju. Dlatego w RSECTION 1 można zastosować metodę opisaną w EN 1993-1-1, 5.2.2 (7) a).

Ponadto rozszerzenie Przekroje efektywne (rozszerzenie dla RSECTION 1) umożliwia przeprowadzenie klasyfikacji zgodnie z EN 1993-1-1 i obliczenie przekroju efektywnego zgodnie z EN 1993-1-5.


Autor

Pani von Bloh zapewnia naszym klientom wsparcie techniczne i jest odpowiedzialna za rozwój programu SHAPE‑THIN oraz konstrukcji stalowych i aluminiowych.



;